(044) 300-25-56

Административные здания в Кировоградской области

ІПОТЕКА. Двокімнатна квартира, загальною площею 104,34 кв.м, що розташована на другому поверсі двоповерхового будинку, за адресою: Кіровоградська область Голованівський район, смт. Голованівськ вул. Нова, 19 квартира 2
7
Кировоградская область

ІПОТЕКА. Двокімнатна квартира, загальною площею 104,34 кв.м, що розташована на другому поверсі двоповерхового будинку, за адресою: : Кіровоградська область Голованівський район, смт. Голованівськ вул. Нова, 19 квартира 2

Житлова площа 42,72 кв.м. у тому числі перша кімната 17,04 кв.м., друга кімната 25,68 кв.м., коридор 28,36 кв.м., ;9,52 кв., комора – 6,54 кв.м., мансарда 17,20 кв.м., Реєстраційний номер 561091135214. Розміщена Кіровоградська область Голованівський район, смт. Голованівськ вул. Нова, 19 квартира 2. Дана квартира знаходиться на земельній ділянці кадастровий номер 3521455100:50:006:0004 реєстраційний номер 614190435214 загальною площею 0,15 га., цільове призначення для будівництва і убслуговування жилого будинку, господарських будівель і споруд (присадибна ділянка) за адресою: Кіровоградська область Голованівський район, смт. Голованівськ вул. Нова, 19 яка належить на праві власності боржнику  на підставі свідоцтва про право власності № 35975807 виданого Реєстраційною службою Голованівського районного управління юстиції Кіровоградської області.

Земельна ділянка не є предметом реалізації.

Зареєстрована одна повнолітня особа.

Право власності на підставі дублікату договору купівлі-продажу,  серія та номер № 34 від 29.01.2015 року, приватний нотаріус Голованівського районного нотаріального округу Голованівського району Кіровоградської області Воєвода С.М

Золотарьова Тетяна Валентинівна (ПВ), виконавчий округ - Кіровоградська обл., номер посвідчення 0021
Номер лоту
585033
Количество комнат
2
Жилая площадь, м.кв.
42.72
Количество этажей дома
2
Этаж
2
Житлова квартира 2765974148
Дата начала аукциона
06.10.2025 09:00:00
Начальная цена
1 058 950 грн
Гарантийный взнос
52 947 грн
Минимальный шаг аукциона
10 590 грн
Стан аукціона
реєстрація учасників
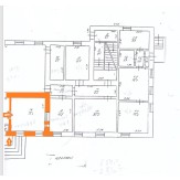
Громадський будинок за адресою: Кіровоградська область, Олександрійський район, село Войнівка, вулиця Шевченка, буд.26
4
Кировоградская область
Громадський будинок за адресою: Кіровоградська область, Олександрійський район, село Войнівка, вулиця Шевченка, буд.26, зальна площа: 191,0 кв.м., розташована на земельній ділянці розміром 0,0337 га. Рік забудови будівлі 1970.
Номер лоту
SPE001-UA-20250904-54353
Приложения (2)
Адміністративна будівля, приміщення в адміністративній будівлі 04232000-3
Конечный срок подачи
23.09.2025 15:00:00
Дата начала аукциона
24.09.2025 09:40:00
Начальная цена
258 989 грн с НДС
Минимальный шаг аукциона
2 590 грн без НДС
Тип аукциона
Английский
Выставляется на аукцион
Впервые
4 торги. Останні торги. Уцінка 30%. Земельна ділянка, загальною площею 2,00 га. ( в тому числі : рілля – 0,0000 га, багаторічні насадження – 0,000 га, пасовища – 2,000 га), к.н.: 3521984600:02:000:0053 для ведення особистого селянського господарства (пасовища). Місцезнаходження: Кіровоградська область, Долинська ТГ (Кіровоградська область, Долинський район, Лаврівська сільська рада)
2
66 850 грн. / га
Кировоградская область
Земельна ділянка, загальною площею 2,00 га. ( в тому числі : рілля – 0,0000 га, багаторічні насадження – 0,000 га, пасовища – 2,000 га), к.н.: 3521984600:02:000:0053 для ведення особистого селянського господарства (пасовища). Місцезнаходження: Кіровоградська область, Долинська ТГ (Кіровоградська область, Долинський район, Лаврівська сільська рада)
Номер лоту
LAE001-UA-20250904-59228
Приложения (4)
Землі сільськогосподарського призначення 06121000-6
Конечный срок подачи
07.10.2025 15:00:00
Дата начала аукциона
08.10.2025 09:15:00
Начальная цена
133 700 грн без НДС
Минимальный шаг аукциона
1 337 грн без НДС
Тип аукциона
Английский
Выставляется на аукцион
Повторно
Довгострокова оренда 12,45 кв.м. в смт Компаніївка Кіровоградської області по вул. Паркова, 14
7
83,33 грн. / м2
Кировоградская область
Будівля розташована у центрі смт Компаніївка, поруч наявні магазини та підприємства, розвинена інфраструктура, зручний під’їзд. Кімната 23 розташована на другому поверсі двоповерхової будівлі. Всі комунікації у наявності - електроенергія, теплопостачання, водопостачання. Технічний стан будівлі задовільний. https://www.ukrposhta.ua/ua/nerukhomist facebook.com/UkrposhtaRealEstate/
Номер лоту
RLE001-UA-20250904-06231
Приложения (2)
Нерухоме майно 04000000-8
Конечный срок подачи
23.09.2025 15:00:00
Дата начала аукциона
24.09.2025 08:15:00
Начальная цена
1 000 грн с НДС
Минимальный шаг аукциона
50 грн без НДС
Начальная цена за кв.м
83 грн без НДС
Тип аукциона
Английский
Выставляется на аукцион
Повторно
Довгострокова оренда 67,2 кв.м. в смт Компаніївка Кіровоградської області по вул. Паркова, 14
7
44,78 грн. / м2
Кировоградская область
Будівля розташована у центрі смт Компаніївка, поруч наявні магазини та підприємства, розвинена інфраструктура, зручний під’їзд. Кімнати 30 - 33 розташовані на другому поверсі двоповерхової будівлі. Всі комунікації у наявності - електроенергія, теплопостачання, водопостачання. Технічний стан будівлі задовільний. https://www.ukrposhta.ua/ua/nerukhomist facebook.com/UkrposhtaRealEstate/
Номер лоту
RLE001-UA-20250904-31145
Приложения (2)
Нерухоме майно 04000000-8
Конечный срок подачи
23.09.2025 15:00:00
Дата начала аукциона
24.09.2025 09:30:00
Начальная цена
3 000 грн с НДС
Минимальный шаг аукциона
150 грн без НДС
Начальная цена за кв.м
45 грн без НДС
Тип аукциона
Английский
Выставляется на аукцион
Повторно
Довгострокова оренда 15,18 кв.м. в м. Новомиргород Кіровоградської області по вул. Соборності, 110/33
7
106,67 грн. / м2
Кировоградская область
Будівля розташована у центрі м. Новомиргород, поруч наявні магазини та підприємства, розвинена інфраструктура, зручний під’їзд. Кімната 4 розташована на першому поверсі триповерхової будівлі. Комунікації у наявності електроенергія, теплопостачання, водопостачання. Технічний стан будівлі задовільний. https://www.ukrposhta.ua/ua/nerukhomist facebook.com/UkrposhtaRealEstate/
Номер лоту
RLE001-UA-20250904-95108
Приложения (2)
Нерухоме майно 04000000-8
Конечный срок подачи
23.09.2025 15:00:00
Дата начала аукциона
24.09.2025 08:30:00
Начальная цена
1 600 грн с НДС
Минимальный шаг аукциона
80 грн без НДС
Начальная цена за кв.м
107 грн без НДС
Тип аукциона
Английский
Выставляется на аукцион
Повторно
Продається земельна ділянка загальною площею 2 га, кадастровий номер 3520384600:02:000:5228, адреса: Кіровоградська область, Олександрійський район, Лікарівська сільська рада, цільове призначення: для ведення особистого селянського господарства
1
33 400 грн. / га
Кировоградская область
Продається земельна ділянка загальною площею 2 га, кадастровий номер 3520384600:02:000:5228, адреса: Кіровоградська область, Олександрійський район, Лікарівська сільська рада, цільове призначення: для ведення особистого селянського господарства
Номер лоту
LSP001-UA-20250904-65120
Приложения (10)
Землі сільськогосподарського призначення 06121000-6
Конечный срок подачи
09.10.2025 15:00:00
Дата начала аукциона
10.10.2025 09:00:00
Начальная цена
66 800 грн без НДС
Минимальный шаг аукциона
668 грн без НДС
Тип аукциона
Английский
Выставляется на аукцион
Впервые
про включення до переліку земельних ділянок для продажу права оренди на них земельну ділянку площею 1,4391 га, для розміщення та експлуатації основних, підсобних і допоміжних будівель та споруд підприємств переробної, машинобудівної та іншої промисловості, включаючи об’єкти оброблення відходів, зокрема із енергогенеруючим блоком (код 11.02), кадастровий номер 3521183600:02:000:0843 за рахунок земель промисловості, транспорту, зв’язку, енергетики, оборони та іншого призначення комунальної власності, яка розташована за адресою Кіровоградська область, Голованівський район, Заваллівська селищна територіальна громада.
1
93 958,40 грн. / га
Кировоградская область
Продаж права оренди на земельну ділянку площею 1,4391 га, для розміщення та експлуатації основних, підсобних і допоміжних будівель та споруд підприємств переробної, машинобудівної та іншої промисловості, включаючи об’єкти оброблення відходів, зокрема із енергогенеруючим блоком (код 11.02), кадастровий номер 3521183600:02:000:0843 за рахунок земель промисловості, транспорту, зв’язку, енергетики, оборони та іншого призначення комунальної власності, яка розташована за адресою Кіровоградська область, Голованівський район, Заваллівська селищна територіальна громада.
Номер лоту
LRE001-UA-20250904-80468
Приложения (6)
Землі промисловості, транспорту, зв'язку, енергетики, оборони та іншого призначення 06128000-5
Конечный срок подачи
05.10.2025 15:00:00
Дата начала аукциона
06.10.2025 09:05:00
Начальная цена
93 958 грн без НДС
Минимальный шаг аукциона
940 грн без НДС
Тип аукциона
Английский
Выставляется на аукцион
Повторно
Житловий будинок садибного типу за адресою: Кіровоградська область, Олександрійський район, селище Приютівка, вулиця Шосейна, буд.11
6
Кировоградская область
Житловий будинок садибного типу за адресою: Кіровоградська область, Олександрійський район, селище Приютівка, вулиця Шосейна, буд.11, зальна площа: 72,0 кв.м., житлова площа: 42,4 кв.м., розташована на земельній ділянці розміром 0,1488 га.
Номер лоту
SPE001-UA-20250904-22483
Приложения (2)
Домоволодіння 04152000-8
Конечный срок подачи
23.09.2025 15:00:00
Дата начала аукциона
24.09.2025 09:45:00
Начальная цена
132 447 грн с НДС
Минимальный шаг аукциона
1 324 грн без НДС
Тип аукциона
Английский
Выставляется на аукцион
Впервые
Про включення до переліку земельних ділянок для продажу права оренди на них в комплексі з розташованими на них водними об’єктами на земельних торгах у формі електронного аукціону земельної ділянки водного фонду площею 11,6839 га для рибогосподарських потреб (КВЦПЗ 10.07), що розташована за адресою Кіровоградська область, Голованівський район, село Могильне, кадастровий номер: 3521183600:51:000:0001 в комплексі з розташованим на ній водним об’єктом площею 11,1140 га
2
3 015,89 грн. / га
Кировоградская область
Продажу права оренди на земельних торгах у формі електронного аукціону земельної ділянки водного фонду площею 11,6839 га для рибогосподарських потреб (КВЦПЗ 10.07), що розташована за адресою Кіровоградська область, Голованівський район, село Могильне, кадастровий номер: 3521183600:51:000:0001 в комплексі з розташованим на ній водним об’єктом площею 11,1140 га
Номер лоту
LRE001-UA-20250904-24560
Приложения (7)
Землі водного фонду 06127000-8
Конечный срок подачи
05.10.2025 15:00:00
Дата начала аукциона
06.10.2025 09:05:00
Начальная цена
33 175 грн без НДС
Минимальный шаг аукциона
332 грн без НДС
Тип аукциона
Английский
Выставляется на аукцион
Повторно
Орена частини приміщення площею 105,6 кв.м в м. Кропивницький по вул. Незалежності 28/20
104,88 грн. / м2
Кировоградская область
Орена частини приміщення площею 105,6 кв.м в м. Кропивницький по вул. Незалежності 28/20 в будівлі КЗ "Інноваційна гімназія" на 1-му поверсі 2 каб.
Номер лоту
LLE001-UA-20250904-81472
Приложения (3)
Нерухоме майно 04000000-8
Конечный срок подачи
24.09.2025 15:00:00
Дата начала аукциона
25.09.2025 09:00:00
Начальная цена
11 012 грн с НДС
Минимальный шаг аукциона
110 грн без НДС
Начальная цена за кв.м
105 грн без НДС
Тип аукциона
Английский
Выставляется на аукцион
Впервые
Аукціон на продовження договору оренди нежитлового приміщення комунальної власності загальною площею 19,5 кв.м, за адресою: Кіровоградська область, Олександрійський район, селище Власівка, вул. Лівобережна,12
1
46,42 грн. / м2
Кировоградская область
Аукціон на продовження договору оренди нежитлового приміщення комунальної власності загальною площею 19,5 кв.м, за адресою: Кіровоградська область, Олександрійський район, селище Власівка, вул. Лівобережна,12. Чинний орендар має переважне право на продовження договору оренди в ході аукціону на продовження договору оренди за умови, що він бере участь такому аукціоні та зробив закриту цінову пропозицію, яка є не меншою, ніж розмір стартової орендної плати. Потенційний орендар повинен відповідати вимогам до особи орендаря, визначеним статтею 4 Закону України «Про оренду державного та комунального майна» від 03.10.2019 №157-IX. Цільове призначення об'єкта оренди – розміщення офіс-магазину. Особа, яка має намір взяти участь в електронному аукціоні, сплачує реєстраційний та гарантійний внески для набуття статусу учасника.
Номер лоту
LLP001-UA-20250904-54362
Приложения (2)
Нерухоме майно 04000000-8
Конечный срок подачи
18.09.2025 15:00:00
Дата начала аукциона
19.09.2025 08:45:00
Начальная цена
882 грн без НДС
Минимальный шаг аукциона
9 грн без НДС
Начальная цена за кв.м
46 грн без НДС
Тип аукциона
Английский
Выставляется на аукцион
Впервые
Перший повторний аукціон з продажу майна банкрута, а саме: грошові вимоги Відкритого акціонерного товариства «Маловисківський цукровий завод» (код ЄДРПОУ 00372061) визнанні ухвалою господарського суду Кіровоградської області від 16.04.2003
3
Кировоградская область
Справа про банкрутство (неплатоспроможність) № 10/143 перебуває в провадженні Господарського суду Кіровоградської області - Відомості про продавця майна (боржника): Відкрите акціонерне товариство «Маловисківський цукровий завод», код ЄДРПОУ 00372061, адреса: вул. Кондратюка, буд. 10, м. Мала Виска, Маловисківський район, Кіровоградська область, 26200; - Відомості про замовника аукціону: арбітражний керуючий, ліквідатор Христенко Вадим Васильович, що діє на підставі свідоцтва на право здійснення діяльності арбітражного керуючого (ліквідатора) № 1538 видане Міністерством юстиції України 17.07.2013 року, та Ухвали господарського суду Кіровоградської області від 18.01.2022 у справі №10/143. Адреса офісу арбітражного керуючого: вул. В. Пермська,21, м. Кропивницький, 25006; тел. +380504870976, e-mail: [email protected]. - Інформація про майно: грошові вимоги Відкритого акціонерного товариства «Маловисківський цукровий завод» (код ЄДРПОУ 00372061) визнанні ухвалою господарського суду Кіровоградської області від 16.04.2003 та включені до реєстру вимог кредиторів у справі №14/3 про банкрутство сільськогосподарського виробничого кооперативу «Росія» (код ЄДРПОУ 03756856) який затверджено ухвалою господарського суду Кіровоградської області від 16.04.2003 на загальну суму 1 670 917 (один мільйон шістсот сімдесят тисяч дев’ятсот сімнадцять ) грн. 00 коп., в тому числі: 1 670 832 (один мільйон шістсот сімдесят тисяч вісімсот тридцять дві ) грн. 00 коп., із них 38 920 (тридцять вісім тисяч дев’ятсот двадцять) грн. 00 коп. штраф, четверта черга; 85 (вісімдесят п’ять) грн. 00 коп., перша черга; - Місцезнаходження майна: вул. Кондратюка, буд. 10, м. Мала Виска, Маловисківський район, Кіровоградська область, 26200; - Обтяження та обмеження щодо розпорядження майном відсутні. Права третіх осіб на майно відсутні; - Порядок ознайомлення з майном: за попередньою домовленістю за телефоном +380504870976, Христенко Вадим Васильович; - Можливість видачі переможцю податкової накладної – відсутня. Початкова вартість, а також запропонована учасником аукціону в ході торгів вартість лоту визначається без урахування ПДВ; - Адреса сторінки веб-сайту, на якій розміщено відомості про проведення попереднього аукціону: https://prozorro.sale/auction/BRE001-UA-20250723-09202; - Додаткові відомості до оголошення про проведення аукціону, а також додаткові відомості про аукціон наведено в даному оголошенні у розділі – Документи аукціону.
Номер лоту
BRD001-UA-20250904-48385
Приложения (7)
Кредити Юридичних осіб беззаставні 07110000-3
Конечный срок подачи
14.09.2025 15:00:00
Дата начала аукциона
15.09.2025 06:45:00
Начальная цена
1 336 730 грн без НДС
Минимальный шаг аукциона
13 367 грн с НДС
Тип аукциона
Английский
Выставляется на аукцион
Повторно
2 торги (повторні). Земельна ділянка кадастровий 3524980400:02:000:9145, площею 2 га, з цільовим призначенням – для ведення особистого селянського господарства, яка знаходиться в адміністративних межах Ганнівської с/ради Олександрійського (Петрівського) району Кіровоградської області.
1
40 700 грн. / га
Кировоградская область
Земельна ділянка кадастровий 3524980400:02:000:9145, площею 2 га, з цільовим призначенням – для ведення особистого селянського господарства, яка знаходиться в адміністративних межах Ганнівської с/ради Олександрійського (Петрівського) району Кіровоградської області.
Номер лоту
LAP001-UA-20250903-97662
Приложения (5)
Землі сільськогосподарського призначення 06121000-6
Конечный срок подачи
06.10.2025 15:00:00
Дата начала аукциона
07.10.2025 08:00:00
Начальная цена
81 400 грн без НДС
Минимальный шаг аукциона
814 грн без НДС
Тип аукциона
Английский
Выставляется на аукцион
Повторно
1 торги. Земельна ділянка площею 2,9552 га, к.н. 3521185100:02:000:0236, для ведення товарного сільськогосподарського виробництва. Кіровоградська обл., Голованівський (Гайворонський) р-н., Соломіївська сільська рада
2
80 250 грн. / га
Кировоградская область
Земельна ділянка площею 2,9552 га, к.н. 3521185100:02:000:0236, для ведення товарного сільськогосподарського виробництва. Кіровоградська обл., Голованівський (Гайворонський) р-н., Соломіївська сільська рада
Номер лоту
LAP001-UA-20250903-02531
Приложения (4)
Землі сільськогосподарського призначення 06121000-6
Конечный срок подачи
14.10.2025 15:00:00
Дата начала аукциона
15.10.2025 09:55:00
Начальная цена
160 500 грн без НДС
Минимальный шаг аукциона
1 605 грн без НДС
Тип аукциона
Английский
Выставляется на аукцион
Впервые
Продаж земельної ділянки загальною площею 2.726 га, кадастровий номер 3524081800:02:001:0371, адреса: Кіровоградська область, Новоукраїнський район, Іванівська сільська рада, цільове призначення: для ведення товарного сільськогосподарського виробництва
1
57 000 грн. / га
Кировоградская область
Продаж земельної ділянки загальною площею 2.726 га, кадастровий номер 3524081800:02:001:0371, адреса: Кіровоградська область, Новоукраїнський район, Іванівська сільська рада, цільове призначення: для ведення товарного сільськогосподарського виробництва
Номер лоту
LSP001-UA-20250903-20885
Приложения (10)
Землі сільськогосподарського призначення 06121000-6
Конечный срок подачи
08.10.2025 15:00:00
Дата начала аукциона
09.10.2025 09:25:00
Начальная цена
114 000 грн без НДС
Минимальный шаг аукциона
1 140 грн без НДС
Тип аукциона
Английский
Выставляется на аукцион
Впервые
Продається земельна ділянка загальною площею 1.8094 га, кадастровий номер 3520584000:02:000:3061, адреса: Кіровоградська область, Олександрівський район, Красносільська сільська рада, цільове призначення: для ведення товарного сільськогосподарського виробництва
1
76 000 грн. / га
Кировоградская область
Продається земельна ділянка загальною площею 1.8094 га, кадастровий номер 3520584000:02:000:3061, адреса: Кіровоградська область, Олександрівський район, Красносільська сільська рада, цільове призначення: для ведення товарного сільськогосподарського виробництва
Номер лоту
LSP001-UA-20250903-03170
Приложения (10)
Землі сільськогосподарського призначення 06121000-6
Конечный срок подачи
07.10.2025 15:00:00
Дата начала аукциона
08.10.2025 09:55:00
Начальная цена
76 000 грн без НДС
Минимальный шаг аукциона
760 грн без НДС
Тип аукциона
Английский
Выставляется на аукцион
Впервые
Довгострокова оренда нежитлового приміщення 18,8 м² у м. Світловодськ Кіровоградської області
4
83,33 грн. / м2
Кировоградская область
Нежитлове приміщення розташоване за операційним залом першого поверху адміністративної будівлі, має задовільний технічний стан. В наявності всі комунікації, окрім санітарної кімнати. Будівля розташована в центральній частині міста. Розвинена інфраструктура, зручний під’їзд. Поруч розташовані торговельні заклади, фінансові установи. https://www.ukrposhta.ua/ua/nerukhomist facebook.com/UkrposhtaRealEstate/
Номер лоту
RLE001-UA-20250903-68471
Приложения (2)
Нерухоме майно 04000000-8
Конечный срок подачи
22.09.2025 15:00:00
Дата начала аукциона
23.09.2025 08:05:00
Начальная цена
1 500 грн с НДС
Минимальный шаг аукциона
100 грн без НДС
Начальная цена за кв.м
83 грн без НДС
Тип аукциона
Английский
Выставляется на аукцион
Повторно
Продаж права оренди земельної ділянки загальною площею 0,4000 га для рибогосподарських потреб (рибоприймальний пункт)
1
Кировоградская область
право оренди земельної ділянки площею 0,4000 га для рибогосподарських потреб, з яких: - 0,4000 га землі під будівлями та спорудами транспорту, що знаходиться за межами населених пунктів на території Подорожнянського старостинського округу Великоандрусівської сільської територіальної громади Олександрійського району Кіровоградської області терміном на 10 (десять) років, кадастровий номер 3525287600:02:000:0634
Номер лоту
LRE001-UA-20250903-16963
Приложения (5)
Землі водного фонду 06127000-8
Конечный срок подачи
06.10.2025 15:00:00
Дата начала аукциона
07.10.2025 08:10:00
Начальная цена
708 грн без НДС
Минимальный шаг аукциона
7 грн без НДС
Тип аукциона
Английский
Выставляется на аукцион
Повторно
Продається земельна ділянка загальною площею 2.1387 га, кадастровий номер 3520584000:02:000:3060, адреса: Кіровоградська область, Олександрівський район, Красносільська сільська рада, цільове призначення: для ведення товарного сільськогосподарського виробництва
1
40 000 грн. / га
Кировоградская область
Продається земельна ділянка загальною площею 2.1387 га, кадастровий номер 3520584000:02:000:3060, адреса: Кіровоградська область, Олександрівський район, Красносільська сільська рада, цільове призначення: для ведення товарного сільськогосподарського виробництва
Номер лоту
LSP001-UA-20250903-19038
Приложения (11)
Землі сільськогосподарського призначення 06121000-6
Конечный срок подачи
06.10.2025 15:00:00
Дата начала аукциона
07.10.2025 08:15:00
Начальная цена
80 000 грн без НДС
Минимальный шаг аукциона
800 грн без НДС
Тип аукциона
Английский
Выставляется на аукцион
Впервые
Другие типы недвижимости в Административных зданий
Нерухомість в місті
Нерухомість за власником