1/3 частина частина двокімнатної квартири, загальною площею 48,53 кв. м. за адресою : м. Запоріжжя, вул. Толока професора буд.19 кв. 27, реєстраційний номер об’єкта нерухомого майна 4053223101.
Право власності зареєстровано на підставі договору купівлі-продажу № 267, виданий 10.02.2017, ПН Запорізького міського нотаріального округу Пянтковська О.Г.
Відповідно довідки № 06.4-06/02/10762 від 29.04.2025 Департаменту адміністративних послуг ЗМР у квартирі зареєстровані 1 повнолітня особа.
Будинок оснащений водопостачанням, електропостачанням, каналізацією, центральним опаленням.
Двокімнатна квартира, загальною площею 53,21 кв.м., за адресою: м. Запоріжжя, вул. Товариська, буд. 66А, кв. 234.
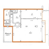
Двокімнатна квартира загальною площею 53,21 кв.м. за адресою: м. Запоріжжя, вул. Товариська, буд. 66А, кв. 234, що розташована на дев’ятому поверсі десятиповерхового багатоквартирного житлового будинку, стіни якого крупнопанельні, перекриття – залізобетонні плити. Склад квартири: 1 кімната – 13,4 кв.м., 2 кімната – 17,3 кв.м., коридор – 6,8 кв.м., комора – 0,6 кв.м., ванна – 2,6 кв.м., туалет – 1,0 кв.м., кухня – 9,7 кв.м., лоджія – 1,81 кв.м. Квартиру забезпечено електро, водопостачанням, водовідведенням. Опалення централізоване. Висота приміщень 2,55 м.
За даними Департаменту адміністративних послуг Запорізької міської ради № 06.4-06/02/33470 у квартирі зараєстрована одна повнолітня особа (неповнолітні та малолітні особи в квартирі не зареєстровані).
Форма власності - приватна (договір дарування № 1-1328 від 28.04.2011, Друга Запорізька державна нотаріальна контора).
Однокімнатна квартира, загальною площею 74,2 кв.м, за адресою: м. Запоріжжя, вул. Тбіліська, буд. 9-В, кв. 24.
Форма власності: технічний паспорт, серія та номер: TI01:3018-4222-8288-0252, виданий 12.10.2021, видавник: ЄДЕССБ, Документ отримано з ЄДЕССБ; Додаткова угода до інвестиційного договору № 1 від 15.08.2016, серія та номер: 6, виданий 25.09.2020, видавник: -; Витяг з Реєстру будівельної діяльності ЄДЕССБ, серія та номер: ІУ122210817262, видавник: ЄДЕССБ, Документ отримано з ЄДЕССБ; Додаткова угода, серія та номер: 4, виданий 30.04.2020, видавник: -; Інвестиційний договір, серія та номер: 1, виданий 15.08.2016, видавник: -; Акт розподілу часток (площ) до інвестиційного договору № 1 від 15.08.2016, серія та номер: 1, виданий 06.10.2021, видавник: -; Договір про управління активами корпоративного інвестиційного фонду, серія та номер: 23/09/20-01, виданий 23.09.2020, видавник: -; Додаткова угода до інвестиційного договору № 1 від 15.08.2016, серія та номер: 1, виданий 14.08.2017, видавник: -; Додаткова угода до інвестиційного договору № 1 від 15.08.2016, серія та номер: 2, виданий 13.08.2018, видавник: -; Додаткова угода до інвестиційного договору № 1 від 15.08.2016, серія та номер: 3, виданий 14.07.2019, видавник: -; Додаткова угода до інвестиційного договору № 1 від 15.08.2016, серія та номер: 5, виданий 05.05.2020, видавник: -; Попередній акт розподілу часток (додаток 1) до Додаткової угоди № 6, серія та номер: б/н, виданий 25.09.2020, видавник: -; Попередній акт розподілу часток (додаток 2) до Додаткової угоди № 6, серія та номер: б/н, виданий 25.09.2020, видавник: -; акт приймання передачі майнових прав за Інвестиційним договором № 1 від 15.08.2016, серія та номер: б/н, виданий 15.08.2016, видавник: -; Документ щодо присвоєння поштової адреси, серія та номер: AR01:7462-1646-5832-5155, виданий 29.11.2021, видавник: ЄДЕССБ, Документ отримано з ЄДЕССБ.
За інформацією Департаменту адміністративних послуг Запорізької міської ради встановлено, що в квартирі відсутні зареєстровані особи.
Напівпричіп ЗАЗ НХ 2210, 2007 р.в., ДНЗ АР8962ХХ, № кузова: Y6DHX221070000053, колір синій.
КТЗ має пошкодження кузову:
- пошкодження лакофарбового покриття по всьому кузову, корозія кузову, вм'ятини, потребує ремонту.
Комплектація базова.
Свідоцтво про реєстрацію транспортного засобу відсутнє.
Квартира, загальною площею 74,3 кв.м, за адресою: м. Запоріжжя, вул. Тбіліська, буд. 9-В, кв. 31.
Форма власносіт: Додаткова угода до інвестиційного договору № 1 від 15.08.2016, серія та номер: 6, виданий 25.09.2020, видавник: -; Витяг з Реєстру будівельної діяльності ЄДЕССБ, серія та номер: ІУ122210817262, видавник: ЄДЕССБ, Документ отримано з ЄДЕССБ; Інвестиційний договір, серія та номер: 1, виданий 15.08.2016, видавник: -; Акт розподілу часток (площ) до інвестиційного договору № 1 від 15.08.2016, серія та номер: 1, виданий 06.10.2021, видавник: -; Акт приймання-передачі майнових прав за Інвестиційним договором № 1 від 15.08.2016, серія та номер: -, виданий 15.08.2016, видавник: -; Документ щодо присвоєння поштової адреси, серія та номер: AR01:7462-1646-5832-5155, виданий 29.11.2021, видавник: ЄДЕССБ, Документ отримано з ЄДЕССБ; Договір про управління активами корпоративного інвестиційного фонду, серія та номер: 23/09/20-1, виданий 23.09.2020, видавник: -; Додаткова угода до інвестиційного договору № 1 від 15.08.2016, серія та номер: 1, виданий 14.08.2017, видавник: -; Додаткова угода до інвестиційного договору № 1 від 15.08.2016, серія та номер: 2, виданий 13.08.2018, видавник: -; Додаткова угода до інвестиційного договору № 1 від 15.08.2016, серія та номер: 3, виданий 14.07.2019, видавник: -; Додаткова угода до інвестиційного договору № 1 від 15.08.2016, серія та номер: 4, виданий 30.04.2020, видавник: -; Додаткова угода до інвестиційного договору № 1 від 15.08.2016, серія та номер: 5, виданий 05.05.2020, видавник: -; Попередній акт розподілу часток (додаток 1) до Додаткової угоди № 6, серія та номер: -, виданий 25.09.2020, видавник: -; Попередній акт розподілу часток (додаток 2) до Додаткової угоди № 6, серія та номер: -, виданий 25.09.2020, видавник: -; Рішення про видачу ліцензії, серія та номер: 428, виданий 31.07.2020, видавник: Національна комісія з цінних паперів та фондового ринку.
За інформацією Департаменту адміністративних послуг Запорізької міської ради встановлено, що в квартирі відсутні зареєстровані особи.
Двокімнатна квартира загальною площею 49,86 кв.м. за адресою: м. Запоріжжя, вул. Вороніна, буд. 11 кв. 51, РНОНМ 1236237023101.
Форма власності - приватна, договір дарування № 990 від 07.06.2019, приватний нотаріус Запорізького міського нотаріального округу Тізенберг Д.Д.
Згідно відповіді Департаменту адміністративних послуг Запорізької міської ради від 05.11.2025 №06.4-06/02/28935 за даною адресою зареєстровані дві повнолітні особи. Неповнолітні особи за адресою незареєстровані.
27/50 частини приміщення цокольного поверху літ. А-5, загальною площею 14,1 кв.м., за адресою: м. Запоріжжя, вул. Незалежної України (колишня назва – Сорок років Радянської України), буд. 58, приміщення 84.
27/50 частини приміщення цокольного поверху літ. А-5, яке розташоване за адресою: вул. Незалежної України (колишня назва – Сорок років Радянської України), буд. №58, прим. 84, м. Запоріжжя, Запорізька область, загальною площею 14,1 кв.м., що належить боржнику на підставі договору купівлі-продажу, серія та номер: 2595, виданого приватним нотаріусом Запорізького міського нотаріального округу Горловою Ю.М. 11.10.2011, РНОНМ: 25560360.
Приміщення цокольного поверху літ. А-5 №84 являє собою частину багатоквартирного житлового будинку та складається з:
Всього по приміщенню цокольного поверху літ. А-5 №84, загальна площа 14,1 кв.м., складається з основної – 7,6 кв.м., допоміжної (підсобної) – 6,5 кв.м.
Згідно технічного паспорту на нерухоме майно:
Трикімнатна квартира, яка розташована за адресою: Запорізька обл., м. Запоріжжя, вул. Тбіліська, б. 9В, секц. 2, кв. 107. Розмір загальної площі, кв.м. – 99.2. Розмір житлової площі, кв.м. – 56.2. Розташована на шостому поверсі, дванадцяти будинку. Матеріал стін – цегла. Матеріал перекриття – збірні залізобетонні плити. Матеріал підлоги – бетон. Електропостачання, газопостачання, водопостачання, каналізація та водовідведення – наявні. Квартира перебуває у задовільному стані. Кількість житлових кімнат – три. Висота приміщень, метри – 2.7.
Квартира належить боржнику на підставі (документи, подані для державної реєстрації): видавник: ЄДЕССБ, Документ отримано з ЄДЕССБ; Витяг з Реєстру будівельної діяльності ЄДЕССБ, серія та номер: ІУ122210817262, видавник: ЄДЕССБ, Документ отримано з ЄДЕССБ; Додаткова угода до інвестиційного договору № 1 від 15.08.2016, серія та номер: 4, виданий 30.04.2020, видавник: -; Попередній акт розподілу часток (додаток 2) до Додаткової угоди № 6, серія та номер: -, виданий 25.09.2020, видавник: -; Рішення про видачу ліцензії, серія та номер: 428, виданий 31.07.2020, видавник: Національна комісія з цінних паперів та фондового ринку; довіреність, серія та номер: 559, виданий 16.08.2022, видавник: Жуковська Ю.В. приватний нотаріус Київського міського нотаріального округу; Витяг з Реєстру будівельної діяльності ЄДЕССБ, серія та номер: ІУ122210817157, видавник: ЄДЕССБ, Документ отримано з ЄДЕССБ; Документ щодо присвоєння поштової адреси, серія та номер: AR01:7462-1646-5832-5155, виданий 30.11.2021, видавник: ЄДЕССБ, Документ отримано з ЄДЕССБ; Додаткова угода до інвестиційного договору № 1 від 15.08.2016, серія та номер: 6, виданий 25.09.2020, видавник: -; Акт розподілу часток (площ) до інвестиційного договору № 1 від 15.08.2016, серія та номер: 2, виданий 06.10.2021, видавник: -; Акт розподілу часток (площ) до інвестиційного договору № 1 від 15.08.2016, серія та номер: 1, виданий 06.10.2021, видавник: -; Інвестиційний договір, серія та номер: 1, виданий 15.08.2016, видавник: -; Акт приймання-передачі майнових прав за Інвестиційним договором № 1 від 15.08.2016, серія та номер: -, виданий 15.08.2016, видавник: -; Договір про управління активами корпоративного інвестиційного фонду, серія та номер: 23/09/20-1, виданий 23.09.2020, видавник: -; Додаткова угода до інвестиційного договору № 1 від 15.08.2016, серія та номер: 1, виданий 14.08.2017, видавник: -; Додаткова угода до інвестиційного договору № 1 від 15.08.2016, серія та номер: 2, виданий 13.08.2018, видавник: -; Додаткова угода до інвестиційного договору № 1 від 15.08.2016, серія та номер: 3, виданий 14.07.2019, видавник: -; Додаткова угода до інвестиційного договору № 1 від 15.08.2016, серія та номер: 5, виданий 05.05.2020, видавник: -; Попередній акт розподілу часток (додаток 1) до Додаткової угоди № 6, серія та номер: -, виданий 25.09.2020, видавник: -.
Згідно відповіді Департаменту адміністративних послуг Запорізької міської ради від 14.01.2026 встановлено, у вищевказаній квартирі за адресою: Запорізька область, м. Запоріжжя, вул. Тбіліська, буд. 9В, секц. 2, квартира 107 зареєстровані особи відсутні.
Двокімнатна квартира загальною площею 43,62 кв.м. за адресою: м. Запоріжжя, вул. Гоголя, буд. 163а кв. 82, РНМ 10709976.
Форма власності - приватна, договір дарування №6942 від 26.09.2012, посвідчений приватним нотаріусом Запорізького міського нотаріального округу Пянтковською О.Г.
Згідно відповіді Департаменту адміністративних послуг Запорізької міської ради від 20.02.2026 №06.4-06/02/5685 за даною адресою зареєстровані дві повнолітні особи та одна неповнолітня особа.
Реалізація майна здійснюється на підставі ухвали Олександрівського районного суду м. Запоріжжя від 10 жовтня 2025 року у справі №331/3872/20 про надання дозволу виконавцю на звернення стягнення на квартиру, право користування якою має неповнолітня дитина, та постанови Запорізького апеляційного суду від 20 січня 2026 року по справі №331/3872/20, якою ухвалу Олександрівського районного суду м. Запоріжжя від 10 жовтня 2025 року у цій справі залишено без змін.
Склад критий арочний, інв. № 176, загальною площею 424.00 кв.м., за адресою: м. Запоріжжя, вул. Дніпровське шосе, 9, реєстраційний номер об'єкта нерухомого майна: 1402739823101.
Загальна площа 424.00 кв.м., до якої входить: склад - 174.60 кв.м., склад - 15.20 кв.м., склад - 15.60 кв.м., склада - 15.90 кв.м., склад - 49.70 кв.м., склад - 132.80 кв.м., склад - 20.20 кв.м.
Інформація щодо наявності комунікацій відсутня.
Форма власності приватна: Акт приймання-передачі нерухомого майна, серія та номер: 5, виданий 26.04.1999, Розпорядження, серія та номер: 63-р, виданий 14.02.1995, видавник: Запорізька обласна рада народних депутатів.
Нежитлове приміщення, комора VІ, поверх ХІ, загальною площею – 3,6 кв. м., РНОНМ 2573424623060, за адресою: м. Запоріжжя, вул. Тбіліська, буд. 9В.
Форма власності: Додаткова угода до інвестиційного договору № 1 від 15.08.2016, серія та номер: 6, виданий 25.09.2020, видавник: -; Акт розподілу часток (площ) до інвестиційного договору № 1 від 15.08.2016, серія та номер: 2, виданий 06.10.2021, видавник: -; Акт розподілу часток (площ) до інвестиційного договору № 1 від 15.08.2016, серія та номер: 1, виданий 06.10.2021, видавник: -; Інвестиційний договір, серія та номер: 1, виданий 15.08.2016, видавник: -; Акт приймання-передачі майнових прав за Інвестиційним договором № 1 від 15.08.2016, серія та номер: -, виданий 15.08.2016, видавник: -; Договір про управління активами корпоративного інвестиційного фонду, серія та номер: 23/09/20-1, виданий 23.09.2020, видавник: -; Додаткова угода до інвестиційного договору № 1 від 15.08.2016, серія та номер: 1, виданий 14.08.2017, видавник: -; Додаткова угода до інвестиційного договору № 1 від 15.08.2016, серія та номер: 2, виданий 13.08.2018, видавник: -; Додаткова угода до інвестиційного договору № 1 від 15.08.2016, серія та номер: 3, виданий 14.07.2019, видавник: -; Додаткова угода до інвестиційного договору № 1 від 15.08.2016, серія та номер: 4, виданий 30.04.2020, видавник: -; Додаткова угода до інвестиційного договору № 1 від 15.08.2016, серія та номер: 5, виданий 05.05.2020, видавник: -; Попередній акт розподілу часток (додаток 1) до Додаткової угоди № 6, серія та номер: -, виданий 25.09.2020, видавник: -; Попередній акт розподілу часток (додаток 2) до Додаткової угоди № 6, серія та номер: -, виданий 25.09.2020.
Нежитлове приміщення, комора ІV, поверх VІІІ, загальною площею – 5,5 кв. м., РНОНМ 2724172323060, за адресою: м. Запоріжжя, вул. Тбіліська, буд. 9В, секц. 1.
Форма власності: Документ, що підтверджує присвоєння закінченому будівництвом об’єкту адреси (Витяг з ЄДЕССБ), серія та номер: AR01:7462-1646-5832-5155, виданий 30.11.2021, видавник: ЄДЕССБ, Документ отримано з ЄДЕССБ; інший тип договору, Рішення про видачу ліцензій, серія та номер: 428, виданий 31.07.2020, видавник: Національна комісія з цінних паперів та фондового ринку; Витяг з Реєстру будівельної діяльності ЄДЕССБ, серія та номер: ІУ122210817262, видавник: ЄДЕССБ, Документ отримано з ЄДЕССБ; акт приймання-передачі, серія та номер: -, виданий 15.08.2016, видавник: -; інший тип договору, Акт розподілу часток (площ) до Інвестиційного договору № 1 від 15.08.2016, серія та номер: б/н, виданий 06.10.2021, видавник: -; інший тип договору, Додаткова угода до Інвестиційного договору № 1 від 15.08.2016, серія та номер: 1, виданий 14.08.2017, видавник: -; інший тип договору, Додаткова угода до Інвестиційного договору № 1 від 15.08.2016, серія та номер: 2, виданий 13.08.2018, видавник: -; інший тип договору, Додаткова угода до Інвестиційного договору № 1 від 15.08.2016, серія та номер: 3, виданий 14.07.2019, видавник: -; інший тип договору, Додаткова угода до Інвестиційного договору № 1 від 15.08.2016, серія та номер: 4, виданий 30.04.2020, видавник: -; інший тип договору, Додаткова угода до Інвестиційного договору № 1 від 15.08.2016, серія та номер: 5, виданий 05.05.2020, видавник: -; інший тип договору, Додаткова угода до Інвестиційного договору № 1 від 15.08.2016, серія та номер: 6, виданий 25.09.2020, видавник: -; інвестиційний договір, серія та номер: 1, виданий 15.08.2016, видавник: -; інший тип договору, Попередній акт розподілу часток (площ) до Інвестиційного договору № 1 від 15.08.2016 (1 секція), серія та номер: -, виданий 25.09.2020, видавник: -; інший тип договору, Договір про управління активами корпоративного інвестиційного фонду, серія та номер: 23/09/20-1, виданий 23.09.2020, видавник: -; технічний паспорт, серія та номер: TI01:4510-3741-7826-0329, виданий 29.10.2021, видавник: ЄДЕССБ, Документ отримано з ЄДЕССБ.
Нежитлове приміщення № 490, підвального поверху в житловому будинку літ. А- 12, секції 5, загальною площею – 85 кв. м., РНОНМ 1836740023101, що розташоване за адресою: м. Запоріжжя, вул. Поштова, буд. 119.
Форма власності: Акт прийому-передачі, серія та номер: б/н, виданий 17.05.2019, видавник: -; Договір про сплату внесків, серія та номер: 8.05.2.046, виданий 05.06.2017, видавник: -; Довідка про внесення пайового внеску, серія та номер: б/н, виданий 17.05.2019, видавник: Житлово-будівельний кооператив "ФОРТЕЦЯ"; Додаткова угода, серія та номер: б/н, виданий 13.02.2019.
Нежитлове приміщення, комора V, поверх V, загальною площею – 5,9 кв. м., РНОНМ 2584114223060, за адресою: м. Запоріжжя, вул. Тбіліська, буд. 9В, секц. 1.
Форма власності: Додаткова угода до інвестиційного договору № 1 від 15.08.2016, серія та номер: 6, виданий 25.09.2020, видавник: -; Витяг з Реєстру будівельної діяльності ЄДЕССБ, серія та номер: ІУ122210817262, видавник: ЄДЕССБ, Документ отримано з ЄДЕССБ; Додаткова угода, серія та номер: 4, виданий 30.04.2020, видавник: -; Інвестиційний договір, серія та номер: 1, виданий 15.08.2016, видавник: -; Додаткова угода до інвестиційного договору № 1 від 15.08.2016, серія та номер: 1, виданий 14.08.2017, видавник: -; Додаткова угода до інвестиційного договору № 1 від 15.08.2016, серія та номер: 2, виданий 13.08.2018, видавник: -; Додаткова угода до інвестиційного договору № 1 від 15.08.2016, серія та номер: 3, виданий 14.07.2019, видавник: -; Додаткова угода до інвестиційного договору № 1 від 15.08.2016, серія та номер: 5, виданий 05.05.2020, видавник: -; Документ щодо присвоєння поштової адреси, серія та номер: AR01:7462-1646-5832-5155, виданий 29.11.2021, видавник: ЄДЕССБ, Документ отримано з ЄДЕССБ.
Нежитлове приміщення, комора ІV, поверх Х, загальною площею – 5,5 кв. м., РНОНМ 2573682223060, за адресою: м. Запоріжжя, вул. Тбіліська, буд. 9В.
Форма власності: Додаткова угода до інвестиційного договору № 1 від 15.08.2016, серія та номер: 6, виданий 25.09.2020, видавник: -; Додаткова угода, серія та номер: 4, виданий 30.04.2020, видавник: -; Інвестиційний договір, серія та номер: 1, виданий 15.08.2016, видавник: -; Акт розподілу часток (площ) до інвестиційного договору № 1 від 15.08.2016, серія та номер: 1, видавник: -; Договір про управління активами корпоративного інвестиційного фонду, серія та номер: 23/09/20-01, виданий 23.09.2000, видавник: -; Додаткова угода до інвестиційного договору № 1 від 15.08.2016, серія та номер: 1, виданий 14.08.2017, видавник: -; Додаткова угода до інвестиційного договору № 1 від 15.08.2016, серія та номер: 2, виданий 13.08.2018, видавник: -; Додаткова угода до інвестиційного договору № 1 від 15.08.2016, серія та номер: 3, виданий 14.07.2019, видавник: -; Додаткова угода до інвестиційного договору № 1 від 15.08.2016, серія та номер: 5, виданий 05.05.2020, видавник: -; Попередній акт розподілу часток (додаток 1) до Додаткової угоди № 6, серія та номер: -, виданий 25.09.2020, видавник: -; Попередній акт розподілу часток (додаток 2) до Додаткової угоди № 6, серія та номер: -, виданий 25.09.2020, видавник: -; акт приймання передачі майнових прав за Інвестиційним договором № 1 від 15.08.2016, серія та номер: -, виданий 15.08.2016.
Нежитлове приміщення, комора ІV, поверх ІХ, загальною площею – 5,5 кв. м., РНОНМ 2714458923060, за адресою: м. Запоріжжя, вул. Тбіліська, буд. 9В, секц. 1.
Форма власності: Витяг з Реєстру будівельної діяльності ЄДЕССБ, серія та номер: ІУ122210817157, видавник: ЄДЕССБ, Документ отримано з ЄДЕССБ; інший тип договору, Додаткова угода до Інвестиційного договору № 1 від 15.08.2016, серія та номер: 1, виданий 14.08.2017, видавник: -; інший тип договору, Додаткова угода до Інвестиційного договору № 1 від 15.08.2016, серія та номер: 2, виданий 13.08.2018, видавник: -; інший тип договору, Додаткова угода до Інвестиційного договору № 1 від 15.08.2016, серія та номер: 3, виданий 14.07.2019, видавник: -; інший тип договору, Додаткова угода до Інвестиційного договору № 1 від 15.08.2016, серія та номер: 4, виданий 30.04.2020, видавник: -; інший тип договору, Додаткова угода до Інвестиційного договору № 1 від 15.08.2016, серія та номер: 5, виданий 05.05.2020, видавник: -; інший тип договору, Додаткова угода до Інвестиційного договору № 1 від 15.08.2016, серія та номер: 6, видавник: -; інвестиційний договір, серія та номер: 1, виданий 15.08.2016, видавник: -; Документ з ЄДЕССБ, Витяг з Реєстру будівельної діяльності про присвоєння адрес, серія та номер: AR01:7462-1646-5832-5155, виданий 30.11.2021, видавник: ЄДЕССБ, Документ отримано з ЄДЕССБ.
Двокімнатна квартира загальною площею 65.50 кв. м.,за адресою: м. Запоріжжя, вул. Базарна (Анголенко), буд. 14-Б, кв. 10, реєстраційний номер майна: 1233510223101.
Будинок забезпечено електрикою, водо-, газопостачанням, каналізацією та центральним опаленням.
Форма власності: приватна свідоцтво про право на спадщину, серія та номер: 1417, виданий 25.04.2017, видавник: Приватний нотаріус Запорізького міського нотаріального округу Кукурудз Т.Ю.
Згідно відповіді Департаменту реєстраційних послуг Запорізької міської ради від 30.10.2025 за вих. № 06.4-06/02/28408 за данною адресою зареєстрована одна повнолітня особа. Неповнолітні за даною адресою не зареєстровані.
Існують різні способи придбання житла або комерційної нерухомості. Це можна зробити за допомогою безпосередньої угоди з власником об'єкта, за посередництва рієлтора, але можна і з аукціону. Такі аукціони проводяться постійно в електронній системі Прозорро.Продажі.
Якщо зареєструватися на аукціон нерухомості, яка вас цікавить, то можна виграти його, і за хорошою ціною отримати у власність або оренду потрібний об'єкт. Такі торги проводяться по всіх регіонах України, зокрема й по місту Запоріжжю, а також області. На них власність виставляють різні замовники, не тільки державні або комунальні організації, а й приватні компанії або особи. Давайте детальніше розглянемо цю тему - оренда і продаж нерухомості в Прозорро.

За допомогою нашого сайту можна детально розглянути за категоріями ті аукціони, які пропонуються в електронній системі. Розбивка за об'єктами і темами можлива і у вузькоспрямованій сфері, а також за географічним принципом. Це стосується можливості купівлі квартири, приміщення, офісу, магазину, цілого підприємства, будівлі або навіть майнового комплексу, а також взяття їх в оренду.
На торги виставляють майно державної власності в обов'язковому порядку, це саме стосується й активів підприємств із великою часткою держави в капіталі. Однак аукціони України в Prozorro не обмежуються тільки орендою і продажем нерухомості, тут можна купити майно звичайних громадян або фірм, які добровільно використовують систему за своїм вибором.
Крім цього торги в Прозорро.Продажі відбуваються ще й за такими темами: реалізація активів збанкрутілих і діючих банків, продаж арештованого майна, активи компаній банкрутів, дозволи на розроблення корисних копалин, продаж металобрухту та деревини, рухомого майна, земельних ділянок під забудову та сільськогосподарських потреб, оренда сільгоспземель і т.д.
Достатньо за цікавою для вас темою знайти потрібний лот, зареєструватися на нього як учасник, і спробувати його виграти.

Яка саме нерухомість в Прозорро пропонується в оренду або на продаж по місту Запоріжжя та Запорізькій області? Тут можна виділити кілька тем, а саме:
Можна знайти торги і за іншими темами, які ми вказували вище. Усе залежить від вашого інтересу до конкретного об'єкта, а також його умов придбання.

Якщо говорити про переваги участі в аукціонах Прозорро.Продажі, то тут можна вказати кілька базових. Це можливість придбати за особливо вигідними цінами держмайно. Під час формування стартової ціни на торги враховувалася залишкова вартість об'єкта, що дуже часто є суттєво нижчою за ринкове значення. Якщо на сам аукціон приходить не багато учасників, а ціни не підвищуються серйозно, то у вас є можливість придбати потрібну нерухомість за хорошою ціною, тобто вигідно.
Бувають і зворотні ситуації, коли учасників чимало, присутня конкуренція, і ціна зростає в кілька разів, а може навіть кілька десятків разів. Це також трапляється в практиці, особливо якщо виставлений на торги об'єкт ліквідний. До такого сценарію також варто підготуватися. Сам аукціон проходить в онлайн-режимі, а участь у ньому також здійснюється дистанційно по інтернету, за допомогою одного з офіційних майданчиків Prozorro. Їх можна знайти і вибрати на офіційному сайті системи.
Торги проходять у три етапи, де в кожного з учасників є можливість підняти ставку. Виграє той, хто до кінця третього раунду дасть найкращу вартість. Після верифікації переможця і оплати ним необхідної суми, з урахуванням податків, а також комісійних, підписується договір купівлі-продажу або оренди.

На торгах у Прозорро можна знайти об'єкт нерухомість у Запорізькій області та по всій країні, який зацікавить вас. У цьому випадку варто подати заявку на участь у торгах. Якщо у вас немає досвіду, а також ви хочете підстрахувати себе від можливих прорахунків і помилок, у вас є можливість замовити у нашої юридичної агенції консультацію і супровід.
Що ви отримуєте в цьому випадку:
Допомога професіоналів допоможе вам не тільки не припуститися помилок, мінімізувати ризики, все зробити правильно, а й заощадити час, а можливо і гроші. При цьому таку допомогу в нашого агентства ви можете замовити на весь цикл участі в торгах, а можете на якомусь його конкретному етапі, де ви відчуваєте необхідність підтримки.