(044) 300-25-56

Нерухомість

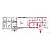
3/100 адміністративної будівлі літ. А-5, (загальна площа будівлі літ. А-5 - 5735,2 кв.м.), за адресою: м. Запоріжжя, проспект Соборний, будинок №105
32
Запорізька область

3/100 адміністративної будівлі літ. А-5, (загальна площа будівлі літ. А-5 - 5735,2 кв.м.), за адресою: м. Запоріжжя, проспект Соборний, будинок №105.

3/100 адміністративної будівлі, літ. А-5, (загальна площа будівлі літ. А-5 - 5735,2 кв.м.), за адресою: проспект Соборний, будинок №105, м. Запоріжжя, Запорізька область, що належить боржнику на праві спільної часткової власності на підставі акту приймання-передавання до статутного фонду Товариства об'єктів нерухомого майна та визначення його оціночної вартості, серія та номер: 1180, 1181, виданого 08.11.2019, Гарслян А.М. та боржником, РНОНМ: 1953414823101, номер запису про право власності: 34142339.

       Згідно акту про розподіл часток будівлі від 14.03.2023, 3/100 адміністративної будівлі літ. А-5 знаходяться на п’ятому поверсі будівлі та складаються з:

  • Прим. №239 – площею 33,3 кв.м.;
  • Прим. №242 – площею 11,2 кв.м
  • Прим. №243 – площею 8,5 кв.м.;
  • Прим. №244 – площею 21,6 кв.м.;
  • Прим. №245 – площею 3,4 кв.м.;
  • Прим. №246 – площею 1,4 кв.м.;
  • Прим. №247 – площею 1,4 кв.м.;
  • Прим. №248 – площею 3,5 кв.м.;
  • Прим. №249 – площею 6,0 кв.м.;
  • Прим. №255 – площею 16,2 кв.м.;
  • Прим. №264 – площею 17,8 кв.м.;
  • Прим. №286 – площею 1,8 кв.м.;
  • Прим. №288 – площею 1,3 кв.м.;
  • Прим. №289 – площею 15,7 кв.м.;
  • Прим. №291 – площею 7,4 кв.м.;

            Загальна площа по приміщенням, що належать ТОВ «ГЛОБАЛ ГЕНЕЗИС», складає 150,5 кв.м., які становлять 3/100 частки будівлі літ. А-5.

            У загальному користуванні співвласників будівлі літ. А-5, згідно акту про розподіл часток будівлі від 14.03.2023 перебувають:

Цокольний поверх:

  • Прим. №1 – площею 2,5 кв.м.;
  • Прим. №2 – площею 14,1 кв.м.;
  • Прим. №18 – площею 51,0 кв.м.;
  • Прим. №19 – площею 2,6 кв.м.;
  • Прим. №38 – площею 92,1 кв.м.;
  • Прим. №44 – площею 4,0 кв.м.;
  • Прим. №45 – площею 22,1 кв.м.;

       Всього у загальному користуванні співвласників цокольного поверху будівлі літ. А-5 – 188,4 кв.м.

 Перший поверх:

  • Прим. №54 – площею 7,3 кв.м.;
  • Прим. №57 – площею 15,5 кв.м.;
  • Прим. №72 – площею 17,0 кв.м.;
  • Прим. №95 – площею 15,9 кв.м.

       Всього у загальному користуванні співвласників першого поверху будівлі літ. А-5 – 55,7 кв.м.

 Другий поверх:

  • Прим. №109 – площею 22,0 кв.м.;
  • Прим. №120 – площею 79,6 кв.м.;
  • Прим. №133 – площею 96,9 кв.м.;
  • Прим. №134 – площею 17,1 кв.м.

       Всього у загальному користуванні співвласників другого поверху будівлі літ. А-5 – 215,6 кв.м.

 Третій поверх:

  • Прим. №158 – площею 17,3 кв.м.;
  • Прим. №170 – площею 4,3 кв.м.;
  • Прим. №183 – площею 17,1 кв.м.

       Всього у загальному користуванні співвласників третього поверху будівлі літ. А-5 – 38,7 кв.м.

 Четвертий поверх:

  • Прим. №207 – площею 17,7 кв.м.;
  • Прим. №228 – площею 17,1 кв.м.;
  • Прим. №238 – площею 38,8 кв.м.

       Всього у загальному користуванні співвласників четвертого поверху будівлі літ. А-5 – 73,6 кв.м.

 П’ятий поверх:

  • Прим. №250 – площею 16,1 кв.м.;
  • Прим. №269 – площею 30,5 кв.м.;
  • Прим. №272 – площею 8,3 кв.м.;
  • Прим. №276 – площею 17,1 кв.м.;
  • Прим. №290 – площею 72,6 кв.м.

       Всього у загальному користуванні співвласників п’ятого поверху будівлі літ. А-5 – 144,6 кв.м.

             Згідно технічного паспорту на нерухоме майно:

  • Адміністративна будівля літ А-5 загальною площею 5735,20 кв.м. складається з 5 поверхів, наявне замощення І та паркан №1. Фундамет – залізо-бетонні блоки, стіни – цегла, покрівля – сумісна рулонна, перекриття – залізо-бетонні плити, підлога – паркет, бетон, лінолеум. Сходи – з/бетонні марші. Інженерні обладнання: наявне центральне опалення, водопровід, каналізація та електрика. Рік спорудження 1970.

           Майно розташоване на земельній ділянці, форма власності: державна власність, належить на праві власності Запорізькій міській раді.

           Земельна ділянка не є предметом реалізації.

Проценко Антон Юрійович (ПВ), виконавчий округ - Запорізька обл., номер посвідчення 0554
Номер лоту
593580
Будівлі 2403150765
Дата початку аукціону
26.02.2026 09:00:00
Початкова ціна
475 201 грн
Гарантійний внесок
23 760 грн
Мінімальний крок аукціону
9 504 грн
Стан аукціона
реєстрація учасників
1/3 ЧАСТИНА ЗЕМЕЛЬНОЇ ДІЛЯНКИ. Кадастровий номер 0524981200:04:001:0078, 01.01. - для ведення товарного сільськогосподарського виробництва, загально площею 1,3931 га
5
28 447 грн. / га
Вінницька область
1/3 ЧАСТИНА ЗЕМЕЛЬНОЇ ДІЛЯНКИ. Кадастровий номер 0524981200:04:001:0078, 01.01. - для ведення товарного сільськогосподарського виробництва, загальною площею 1,3931 га, Вінницька обл., Могилів-Подільський (Чернівецький) р-н, Березівська с/рада
Номер лоту
LAP001-UA-20260206-06268
Додатки (18)
Землі сільськогосподарського призначення 06121000-6
Кінцевий строк подання
09.03.2026 16:00:00
Дата початку аукціону
10.03.2026 10:40:00
Початкова ціна
28 447 грн без ПДВ
Мінімальний крок аукціону
284 грн без ПДВ
Тип аукціону
Англійський
Виставляється на аукціон
Вперше
Право оренди земельної ділянки площею 2 га, кадастровий номер 5324586700:00:004:0181, місцезнаходження: Полтавська область, Семенівський район, Пузирівська сільська рада, цільове призначення: для ведення особистого селянського господарства, реєстраційний номер об'єкта нерухомого майна 2260872253245, що зареєстровано на підставі договору оренди землі б/н, виданий 27.01.2021, номер запису про інше речове право 40357780, строк дії іншого речового права 27.01.2036, інформація щодо розміру орендної плати на рік відсутня.
1
36 817,50 грн. / га
Полтавська область
Право оренди земельної ділянки площею 2 га, кадастровий номер 5324586700:00:004:0181, місцезнаходження: Полтавська область, Семенівський район, Пузирівська сільська рада, цільове призначення: для ведення особистого селянського господарства, реєстраційний номер об'єкта нерухомого майна 2260872253245, що зареєстровано на підставі договору оренди землі б/н, виданий 27.01.2021, номер запису про інше речове право 40357780, строк дії іншого речового права 27.01.2036, інформація щодо розміру орендної плати на рік відсутня.
Номер лоту
LAE001-UA-20260206-40066
Додатки (10)
Землі сільськогосподарського призначення 06121000-6
Кінцевий строк подання
08.03.2026 16:00:00
Дата початку аукціону
09.03.2026 09:10:00
Початкова ціна
73 635 грн без ПДВ
Мінімальний крок аукціону
736 грн без ПДВ
Тип аукціону
Англійський
Виставляється на аукціон
Вперше
ПРО ПРОВЕДЕННЯ АУКЦІОНУ НА ПРОДОВЖЕННЯ ДОГОВОРУ ОРЕНДИ АБО УКЛАДАННЯ ДОГОВОРУ ОРЕНДИ З НОВИМ ОРЕНДАРЕМ ОБ’ЄКТА НЕРУХОМОСТІ ЗА АДРЕСОЮ: М. КРИВИЙ РІГ, ВУЛ. ЯРОСЛАВА МУДРОГО, 70
3
98,56 грн. / м2
Дніпропетровська область
Нежитлове приміщення з окремим входом, вбудоване у перший поверх житлового будинку площею 86,3 кв.м за адресою: м. Кривий Ріг, вул. Ярослава Мудрого, 70
Номер лоту
LLP001-UA-20260206-04840
Додатки (6)
Нерухоме майно 04000000-8
Кінцевий строк подання
17.02.2026 16:00:00
Дата початку аукціону
18.02.2026 09:15:00
Початкова ціна
8 476 грн без ПДВ
Мінімальний крок аукціону
85 грн без ПДВ
Початкова ціна за кв.м
99 грн без ПДВ
Тип аукціону
Англійський
Виставляється на аукціон
Вперше
Продається земельна ділянка загальною площею 1.3108 га, кадастровий номер 5321355400:00:001:0035, адреса: Полтавська область, Зіньківський район, Опішнянська селищна рада, цільове призначення: для ведення товарного сільськогосподарського виробництва
1
61 000 грн. / га
Полтавська область
Продається земельна ділянка загальною площею 1.3108 га, кадастровий номер 5321355400:00:001:0035, адреса: Полтавська область, Зіньківський район, Опішнянська селищна рада, цільове призначення: для ведення товарного сільськогосподарського виробництва
Номер лоту
LSP001-UA-20260206-47210
Додатки (8)
Землі сільськогосподарського призначення 06121000-6
Кінцевий строк подання
16.03.2026 16:00:00
Дата початку аукціону
17.03.2026 09:15:00
Початкова ціна
61 000 грн без ПДВ
Мінімальний крок аукціону
610 грн без ПДВ
Тип аукціону
Англійський
Виставляється на аукціон
Вперше
Право оренди земельної ділянки площею 2 га, кадастровий номер 5324586700:00:004:0182, місцезнаходження: Полтавська область, Семенівський район, Пузирівська сільська рада, цільове призначення: для ведення особистого селянського господарства, реєстраційний номер об'єкта нерухомого майна 2260972853245, що зареєстровано на підставі договору оренди землі б/н, виданий 30.12.2020, номер запису про інше речове право 40056486, строк дії іншого речового права 30.12.2035, інформація щодо розміру орендної плати на рік відсутня
1
36 670 грн. / га
Полтавська область
Право оренди земельної ділянки площею 2 га, кадастровий номер 5324586700:00:004:0182, місцезнаходження: Полтавська область, Семенівський район, Пузирівська сільська рада, цільове призначення: для ведення особистого селянського господарства, реєстраційний номер об'єкта нерухомого майна 2260972853245, що зареєстровано на підставі договору оренди землі б/н, виданий 30.12.2020, номер запису про інше речове право 40056486, строк дії іншого речового права 30.12.2035, інформація щодо розміру орендної плати на рік відсутня
Номер лоту
LAE001-UA-20260206-57321
Додатки (9)
Землі сільськогосподарського призначення 06121000-6
Кінцевий строк подання
08.03.2026 16:00:00
Дата початку аукціону
09.03.2026 09:40:00
Початкова ціна
73 340 грн без ПДВ
Мінімальний крок аукціону
733 грн без ПДВ
Тип аукціону
Англійський
Виставляється на аукціон
Вперше
Аукціон на оренду об'єкта нерухомого майна, розташованого за адресою: м. Одеса, вул. Головатого отамана, 31, приміщення 1
6
73,11 грн. / м2
Одеська область
Нежитлові приміщення першого поверху загальною площею 18,5 кв.м, що розташовані за адресою: м. Одеса, вул. Головатого отамана, 31, приміщення 1
Номер лоту
LLE001-UA-20260206-42415
Додатки (7)
Нерухоме майно 04000000-8
Кінцевий строк подання
15.02.2026 16:00:00
Дата початку аукціону
16.02.2026 10:25:00
Початкова ціна
1 316 грн без ПДВ
Мінімальний крок аукціону
13 грн без ПДВ
Початкова ціна за кв.м
73 грн без ПДВ
Тип аукціону
Англійський
Виставляється на аукціон
Вперше
Продаж права вимоги (дебіторської заборгованості) Товариства з обмеженою відповідальністю «Україна-Вояж» (код ЄДРПОУ 35122611) на першому аукціоні без можливості зниження початкової ціни
Київська область
В провадженні Господарського суду міста Києва перебуває справа №910/2615/23 про банкрутство ТОВ «Україна-Вояж» (03170, м. Київ, вул. Янтарна, буд. 5в; код ЄДРПОУ 35122611). Постановою Господарського суду міста Києва від 06.03.2024 у справі №910/2615/23 визнано ТОВ «Україна-Вояж» (03170, м. Київ, вул. Янтарна, буд. 5в; код ЄДРПОУ 35122611) банкрутом, припинено процедуру розпорядження майном, відкрито ліквідаційну процедуру, призначено ліквідатором банкрута арбітражного керуючого Реверука П.К. Відомості про продавця майна: ТОВ «Україна-Вояж» (03170, м. Київ, вул. Янтарна, буд. 5в; код ЄДРПОУ 35122611). Відомості про замовника аукціону: арбітражний керуючий Реверук Петро Костянтинович (свідоцтво на право здійснення діяльності арбітражного керуючого №783 від 08.04.2013); РНОКПП 3162917798; місцезнаходження офісу: 04053, м. Київ, вул. Січових Стрільців, 21, оф. 501; адреса для листування: 04071, м. Київ – 71, а/с 71; e-mail: [email protected]; тел.: +38 (097) 919-22-25. Спосіб отримання додаткової інформації про проведення аукціону: додаткову інформацію можна отримати у ліквідатора ТОВ «Україна-Вояж» арбітражного керуючого Реверука П.К. за тел.: +38 (097) 919-22-25 та/або електронною поштою: [email protected]. Порядок оформлення участі в аукціоні: реєстрація учасників здійснюється відповідно до вимог, визначених у Розділі VI Порядку організації та проведення аукціонів з продажу майна боржників у справах про банкрутство (неплатоспроможність) (затвердженого постановою Кабінету Міністрів України від 2 жовтня 2019 р. №865). На підставі Витягу з Протоколу №18/12/25 від 18.12.2025 засідання комітету кредиторів ТОВ «Україна-Вояж» (ЄДРПОУ 35122611) (справа №910/2615/23), яким погоджено умови продажу, оголошується продаж права вимоги (дебіторської заборгованості) ТОВ «Україна-Вояж» на загальну суму 8 474 683,80 грн. до боржника Джетере Ісмаіла Емірасановича (97562, Автономна Республіка Крим, Сімферопольський р-н, с. Українка, вул. Сонячна, буд. 6) на першому аукціоні без можливості зниження початкової ціни. Документи, які підтверджують право вимоги: - Рішення Господарського суду міста Києва від 02.04.2025 у справі №910/2615/23; - Наказ про примусове виконання Рішення Господарського суду міста Києва від 02.04.2025 у справі №910/2615/23, виданий Господарським судом міста Києва 30.04.2025. Аукціон проводиться без можливості зниження початкової ціни. Адреса веб-сторінки, на якій розміщено відомості про проведення попереднього аукціону: https://sale.uub.com.ua/PositionForm.aspx?code=loc-2025-12-09-JRPWENJAQB. Відомості про обтяження та обмеження майна, права третіх осіб: відсутні. Порядок та умови отримання майна переможцем аукціону: передача майна здійснюється відповідно до ст. ст. 87-88 Кодексу України з процедур банкрутства, зокрема, придбане на аукціоні майно, майнове право передається, а право вимоги відступається Покупцю після повної сплати запропонованої ним ціни, про що складається Акт про придбання майна на аукціоні. Вартість майна (права вимоги (дебіторської заборгованості)) визначається без урахування податку на додану вартість, податкова накладна не надається.
Номер лоту
BRE001-UA-20260206-85838
Додатки (6)
Кредити Юридичних осіб беззаставні 07110000-3
Кінцевий строк подання
25.02.2026 16:00:00
Дата початку аукціону
26.02.2026 10:20:00
Початкова ціна
8 474 680 грн без ПДВ
Мінімальний крок аукціону
84 747 грн без ПДВ
Тип аукціону
Англійський
Виставляється на аукціон
Вперше
Тернопільська обл.,Кременецький р-н смт.Вишнівець, вул.Грушевського,3. Оренда – приміщення другого поверху, площею 11,10 м²(В).
6
45,91 грн. / м2
Тернопільська область
Пропонуються до оренди приміщення другого поверху двох поверхової будівлі, площею 11,10 м². Будівля знаходиться в центральній частині, розвинена інфраструктура, високі автомобільний та пішохідний потоки. Зручний заїзд до будівлі. Характеристики кількість поверхів – 2 Електропостачання-наявне Теплопостачання відсутнє Водопостачання відсутнє
Номер лоту
CLE001-UA-20260206-13449
Додатки (2)
Адміністративно-офісна нерухомість 04230000-9
Кінцевий строк подання
09.03.2026 16:00:00
Дата початку аукціону
10.03.2026 09:50:00
Початкова ціна
505 грн з ПДВ
Мінімальний крок аукціону
50 грн без ПДВ
Початкова ціна за кв.м
46 грн без ПДВ
Тип аукціону
Англійський
Виставляється на аукціон
Вперше
Продаж транспортного засобу «Автомобіль Skoda Fabia Elegans легковий комбі – 2004 року випуску, державний реєстраційний номер 11_2478»
3
Київська область
Продаж транспортного засобу «Автомобіль Skoda Fabia Elegans легковий комбі – 2004 року випуску, державний реєстраційний номер 11_2478». Автомобіль зеленого кольору 2004 року випуску з механічною коробкою передач; Потребує ремонту Ходова частина потребує технічного обслуговування; Наявні пошкодження кузова – корозія.
Номер лоту
ALE001-UA-20260206-98480
Додатки (6)
Легкові автомобілі 34110000-1
Кінцевий строк подання
26.02.2026 16:00:00
Дата початку аукціону
27.02.2026 10:30:00
Початкова ціна
100 448 грн з ПДВ
Мінімальний крок аукціону
1 004 грн без ПДВ
Тип аукціону
Англійський
Виставляється на аукціон
Вперше
Продаж транспортного засобу «Автомобіль Skoda Fabia Classic загальний легковий комбі – 2004 року випуску, державний реєстраційний номер 11_2476»
3
Київська область
Продаж транспортного засобу «Автомобіль Skoda Fabia Classic загальний легковий комбі – 2004 року випуску, державний реєстраційний номер 11_2476». Автомобіль зеленого кольору 2004 року випуску з механічною коробкою передач; Потребує ремонту Ходова частина потребує технічного обслуговування; Наявні пошкодження кузова – корозія.
Номер лоту
ALE001-UA-20260206-46815
Додатки (6)
Легкові автомобілі 34110000-1
Кінцевий строк подання
26.02.2026 16:00:00
Дата початку аукціону
27.02.2026 10:25:00
Початкова ціна
101 645 грн з ПДВ
Мінімальний крок аукціону
1 016 грн без ПДВ
Тип аукціону
Англійський
Виставляється на аукціон
Вперше
Право оренди земельної ділянки площею 2 га, кадастровий номер 5324581500:00:003:0358, місцезнаходження: Полтавська область, Семенівський район, Горошинська сільська рада, цільове призначення: для ведення особистого селянського господарства, реєстраційний номер об'єкта нерухомого майна 2239615853245, що зареєстровано на підставі договору оренди землі б/н, виданий 08.12.2020, номер запису про інше речове право 39685076, строк дії іншого речового права 08.12.2035, інформація щодо розміру орендної плати на рік відсутня.
1
36 552,50 грн. / га
Полтавська область
Право оренди земельної ділянки площею 2 га, кадастровий номер 5324581500:00:003:0358, місцезнаходження: Полтавська область, Семенівський район, Горошинська сільська рада, цільове призначення: для ведення особистого селянського господарства, реєстраційний номер об'єкта нерухомого майна 2239615853245, що зареєстровано на підставі договору оренди землі б/н, виданий 08.12.2020, номер запису про інше речове право 39685076, строк дії іншого речового права 08.12.2035, інформація щодо розміру орендної плати на рік відсутня.
Номер лоту
LAE001-UA-20260206-55424
Додатки (9)
Землі сільськогосподарського призначення 06121000-6
Кінцевий строк подання
08.03.2026 16:00:00
Дата початку аукціону
09.03.2026 09:40:00
Початкова ціна
73 105 грн без ПДВ
Мінімальний крок аукціону
731 грн без ПДВ
Тип аукціону
Англійський
Виставляється на аукціон
Вперше
Треті торги ( уцінка 15%) Примусова реалізація земельної ділянки реєстраційний/кадастровий номер 2322184900:02:002:0031, площа (га): 4.5902, місце розташування: Запорізька обл., Запорізький р., Лисогірська сільська рада
1
52 282,50 грн. / га
Запорізька область
Земельна ділянка реєстраційний/кадастровий номер 2322184900:02:002:0031, площа (га): 4.5902, місце розташування: Запорізька обл., Запорізький р., Лисогірська сільська рада
Номер лоту
LAP001-UA-20260206-65690
Додатки (16)
Землі сільськогосподарського призначення 06121000-6
Кінцевий строк подання
08.03.2026 16:00:00
Дата початку аукціону
09.03.2026 09:25:00
Початкова ціна
209 130 грн без ПДВ
Мінімальний крок аукціону
2 091 грн без ПДВ
Тип аукціону
Англійський
Виставляється на аукціон
Повторно
20 (двадцять) машиномісць у вбудовано-прибудованому паркінгу за адресою: м. Київ, вул. Андрея Шептицького Митрополита, буд. 4, загальною площею 322,40 кв.м
1
Київська область
20 (двадцять) машиномісць, розташованих за адресою: м. Київ, вул. Андрея Шептицького Митрополита, буд. 4, загальною площею 322,40 кв.м, а саме: • машиномісце №70 у вбудовано-прибудованому паркінгу (17.0 кв.м); • машиномісце №71 у вбудовано-прибудованому паркінгу (17.2 кв.м); • машиномісце №72 у вбудовано-прибудованому паркінгу (16.4 кв.м); • машиномісце №73 у вбудовано-прибудованому паркінгу (16.9 кв.м); • машиномісце №77 у вбудовано-прибудованому паркінгу (16.8 кв.м); • машиномісце №79 у вбудовано-прибудованому паркінгу (16.8 кв.м); • машиномісце №80 у вбудовано-прибудованому паркінгу (15.5 кв.м); • машиномісце №81 у вбудовано-прибудованому паркінгу (16.7 кв.м); • машиномісце №82 у вбудовано-прибудованому паркінгу (16.3 кв.м); • машиномісце №83 у вбудовано-прибудованому паркінгу (15.7 кв.м); • машиномісце №84 у вбудовано-прибудованому паркінгу (16.5 кв.м); • машиномісце №85 у вбудовано-прибудованому паркінгу (16.6 кв.м); • машиномісце №86 у вбудовано-прибудованому паркінгу (15.6 кв.м); • машиномісце №87 у вбудовано-прибудованому паркінгу (15.7 кв.м); • машиномісце №88 у вбудовано-прибудованому паркінгу (16.6 кв.м); • машиномісце №91 у вбудовано-прибудованому паркінгу (16.6 кв.м); • машиномісце №92 у вбудовано-прибудованому паркінгу (14.4 кв.м); • машиномісце №93 у вбудовано-прибудованому паркінгу (15.8 кв.м); • машиномісце №94 у вбудовано-прибудованому паркінгу (15.5 кв.м); • машиномісце №95 у вбудовано-прибудованому паркінгу (13.8 кв.м). Детальна інформація про Лот наведена у Додатку 3 до Оголошення.
Номер лоту
NLE001-UA-20260206-03793
Додатки (4)
Нерухоме майно 04000000-8
Кінцевий строк подання
05.03.2026 16:00:00
Дата початку аукціону
06.03.2026 09:35:00
Початкова ціна
7 675 330 грн без ПДВ
Мінімальний крок аукціону
76 753 грн без ПДВ
Тип аукціону
Англійський
Виставляється на аукціон
Вперше
Право оренди земельної ділянки площею 2 га, кадастровий номер 5324586700:00:004:0180, місце знаходження: Полтавська область, Семенівський район, Пузирівська сільська рада, цільове призначення: для ведення особистого селянського господарства, реєстраційний номер об'єкта нерухомого майна 2332037653245, що зареєстровано на підставі договору оренди землі б/н, виданий 05.05.2021, номер запису про інше речове право 41878967 строк дії іншого речового права 05.05.2036, інформація щодо розміру орендної плати на рік відсутня
1
37 329,50 грн. / га
Полтавська область
Право оренди земельної ділянки площею 2 га, кадастровий номер 5324586700:00:004:0180, місце знаходження: Полтавська область, Семенівський район, Пузирівська сільська рада, цільове призначення: для ведення особистого селянського господарства, реєстраційний номер об'єкта нерухомого майна 2332037653245, що зареєстровано на підставі договору оренди землі б/н, виданий 05.05.2021, номер запису про інше речове право 41878967 строк дії іншого речового права 05.05.2036, інформація щодо розміру орендної плати на рік відсутня
Номер лоту
LAE001-UA-20260206-60789
Додатки (9)
Землі сільськогосподарського призначення 06121000-6
Кінцевий строк подання
08.03.2026 16:00:00
Дата початку аукціону
09.03.2026 10:55:00
Початкова ціна
74 659 грн без ПДВ
Мінімальний крок аукціону
747 грн без ПДВ
Тип аукціону
Англійський
Виставляється на аукціон
Вперше
Продаж права оренди на земельну ділянку площею 0,4500 га, кадастровий номер 3521110100:50:139:0012, для будівництва та обслуговування будівель торгівлі. Місце розташування земельної ділянки: вул. Гайворонська, м. Гайворон, Голованівський район, Кіровоградська область
Кіровоградська область
Продаж права оренди на земельну ділянку площею 0,4500 га, кадастровий номер 3521110100:50:139:0012, для будівництва та обслуговування будівель торгівлі. Місце розташування земельної ділянки: вул. Гайворонська, м. Гайворон, Голованівський район, Кіровоградська область
Номер лоту
LRE001-UA-20260206-45097
Додатки (6)
Землі громадської забудови (землі, які використовуються для розміщення громадських будівель і споруд (готелів, офісних будівель, торговельних будівель, для публічних виступів, для музеїв та бібліотек, для навчальних та дослідних закладів, для лікарень та оздоровчих закладів), інших об'єктів загального користування) 06112000-0
Кінцевий строк подання
10.03.2026 16:00:00
Дата початку аукціону
11.03.2026 10:40:00
Початкова ціна
104 912 грн без ПДВ
Мінімальний крок аукціону
1 049 грн без ПДВ
Тип аукціону
Англійський
Виставляється на аукціон
Вперше
Право оренди земельної ділянки площею 2 га, кадастровий номер 5324586700:00:004:0179, місцезнаходження: Полтавська область, Семенівський район, Пузирівська сільська рада, цільове призначення: для ведення особистого селянського господарства, реєстраційний номер об'єкта нерухомого майна 2266579753245, що зареєстровано на підставі договору оренди землі б/н, виданий 27.01.2021, номер запису про інше речове право 40354982, строк дії іншого речового права 27.01.2036, інформація щодо розміру орендної плати на рік відсутня.
1
36 817,50 грн. / га
Полтавська область
Право оренди земельної ділянки площею 2 га, кадастровий номер 5324586700:00:004:0179, місцезнаходження: Полтавська область, Семенівський район, Пузирівська сільська рада, цільове призначення: для ведення особистого селянського господарства, реєстраційний номер об'єкта нерухомого майна 2266579753245, що зареєстровано на підставі договору оренди землі б/н, виданий 27.01.2021, номер запису про інше речове право 40354982, строк дії іншого речового права 27.01.2036, інформація щодо розміру орендної плати на рік відсутня.
Номер лоту
LAE001-UA-20260206-55270
Додатки (9)
Землі сільськогосподарського призначення 06121000-6
Кінцевий строк подання
08.03.2026 16:00:00
Дата початку аукціону
09.03.2026 10:20:00
Початкова ціна
73 635 грн без ПДВ
Мінімальний крок аукціону
736 грн без ПДВ
Тип аукціону
Англійський
Виставляється на аукціон
Вперше
Нежитлове приміщення №20н, загальною площею 3,8 кв.м, що розташовані на тринадцятому поверсі будинку за адресою: Одеська область, м. Одеса, вул. Дюківська, будинок № 8. Реєстраційний номер майна: 22981306.
2
Одеська область

Нежитлове приміщення №20н, загальною площею 3,8 кв.м, що розташовані на тринадцятому поверсі будинку за адресою: Одеська область, м. Одеса, вул. Дюківська, будинок № 8. Реєстраційний номер майна:  22981306.

Майно належить боржнику на підставі свідоцтва про право власності САВ № 800323, виданого 25.03.2008 виконавчим комітетом Одеської міської ради.

Відділ примусового виконання рішень Управління забезпечення примусового виконання рішень в Одеській області Одеського міжрегіонального управління Міністерства юстиції України
Номер лоту
593589
Нежитлове приміщення 4160520416
Дата початку аукціону
26.02.2026 09:00:00
Початкова ціна
140 210 грн
Гарантійний внесок
7 011 грн
Мінімальний крок аукціону
2 804 грн
Стан аукціона
реєстрація учасників
Продаж права оренди земельної ділянки комунальної власності
1
5 363,09 грн. / га
Хмельницька область
Продаж права оренди земельної ділянки комунальної власності площею 14,6553га (кадастровий номер: 6823055100:10:001:0021)
Номер лоту
LRE001-UA-20260206-57568
Додатки (5)
Землі сільськогосподарського призначення 06121000-6
Кінцевий строк подання
05.03.2026 16:00:00
Дата початку аукціону
06.03.2026 09:55:00
Початкова ціна
75 083 грн без ПДВ
Мінімальний крок аукціону
751 грн без ПДВ
Тип аукціону
Англійський
Виставляється на аукціон
Вперше
Продаж земельної ділянки з переважним правом площею - 1,2857 га, кадастровий номер - 6825882800:04:012:0064, що знаходиться за адресою: Хмельницька область, Ярмолинецький район, Глушовецька сільська рада. Земельна ділянка перебуває в оренді - ТОВ "Енселко Агро" . Строк дії договору оренди до - 03.03.2029 року.
1
154 798 грн. / га
Хмельницька область
Продаж земельної ділянки з переважним правом площею - 1,2857 га, кадастровий номер - 6825882800:04:012:0064, що знаходиться за адресою: Хмельницька область, Ярмолинецький район, Глушовецька сільська рада. Земельна ділянка перебуває в оренді - ТОВ "Енселко Агро" . Строк дії договору оренди до - 03.03.2029 року.
Номер лоту
LSP001-UA-20260206-02440
Додатки (7)
Землі сільськогосподарського призначення 06121000-6
Кінцевий строк подання
10.03.2026 16:00:00
Дата початку аукціону
11.03.2026 10:45:00
Початкова ціна
154 798 грн без ПДВ
Мінімальний крок аукціону
1 548 грн без ПДВ
Тип аукціону
Англійський
Виставляється на аукціон
Вперше
Нерухомість за власником