(044) 300-25-56

Нерухомість у Тернопільській області

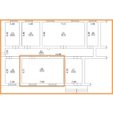
Частина нежитлової будівлі, адмінкорпус 2-3 поверх, на плані літ. "А", загальною площею 748,4 кв.м. за адресою: Тернопільська обл., Чортківський р-н, смт. Мельниця-Подільська, вул. І.Франка, буд. 37
7
Тернопільська область

Підставою виникнення права власності на нежиле приміщення, адмінкорпусу, на плані літ. "А", загальною площею 748,4 кв.м. за адресою: Тернопільська область, Чортківський район,смт. Мельниця-Подільська, вулиця І.Франка, будинок 37 . є свідоцтво про право власності /ЯЯЯ 471342 № №32 від 06.03.2007 Виконавчого комітету Мельнице-Подільської селищної ради . Триповерхова цегляна будівля (реалізовується 2-3 поверх), стіни і перегородки - цегляні оштукатурені, перекриття- з/б панельні, дах з асбезтоцементних листів, подекуди тріщини в стінах.

Борщівський відділ державної виконавчої служби у Чортківському районі Тернопільської області Західного міжрегіонального управління Міністерства юстиції
Номер лоту
585725
Будівлі 2403150765
Дата початку аукціону
27.10.2025 09:00:00
Початкова ціна
1 161 530 грн
Гарантійний внесок
58 077 грн
Мінімальний крок аукціону
11 615 грн
Стан аукціона
реєстрація учасників
Тернопільська обл., Тернопільський ра-н., м. Бережани, вул. Тернопільська,18. Оренда – приміщення гаражів, площею 72,0 м² (П)
5
52,56 грн. / м2
Тернопільська область
Пропонується до оренди приміщення гаражів площею 72,0 кв.м. Будівля знаходиться в промисловій частині міста. Можливість передачі приміщень в суборенду. Доступ вільний 24/7. Характеристики: Кількість поверхів будівлі – 1; Загальна площа будівлі – 103,2 м²; Площа запропонована до оренди 72,0 м²; Опалення – відсутнє.
Номер лоту
CLP001-UA-20250926-12239
Додатки (2)
Гараж, станція технічного обслуговування, мийка транспортних засобів, автостоянка, автозаправна станція тощо та їх частини 04213000-4
Кінцевий строк подання
27.10.2025 16:00:00
Дата початку аукціону
28.10.2025 09:45:00
Початкова ціна
3 784 грн з ПДВ
Мінімальний крок аукціону
250 грн без ПДВ
Початкова ціна за кв.м
53 грн без ПДВ
Тип аукціону
Англійський
Виставляється на аукціон
Повторно
Право оренди на земельну ділянку несільськогосподарського призначення, цільове призначення: 02.03. для будівництва і обслуговування багатоквартирного житлового будинку, площею 0,3288 га, кадастровий номер 6125884400:01:001:0882, яка розташована: село Круголець Кременецького району Тернопільської області (на території Шумської міської територіальної громади).
6
Тернопільська область
Право оренди на земельну ділянку несільськогосподарського призначення, цільове призначення: 02.03. для будівництва і обслуговування багатоквартирного житлового будинку, площею 0,3288 га, кадастровий номер 6125884400:01:001:0882, яка розташована: село Круголець Кременецького району Тернопільської області (на території Шумської міської територіальної громади).
Номер лоту
LRE001-UA-20250926-50514
Додатки (14)
Землі житлової забудови (землі, які використовуються для розміщення житлової забудови (житлові будинки, гуртожитки, господарські будівлі та інше); землі, які використовуються для розміщення гаражного будівництва) 06111000-3
Кінцевий строк подання
28.10.2025 16:00:00
Дата початку аукціону
29.10.2025 09:45:00
Початкова ціна
33 404 грн без ПДВ
Мінімальний крок аукціону
334 грн без ПДВ
Тип аукціону
Англійський
Виставляється на аукціон
Повторно
право оренди на земельну ділянку сільськогосподарського призначення площею 6,2365 га, кадастровий номер 6125885400:02:001:0337 за межами населеного пункту с.Матвіївці, на території Великодедеркальської сільської ради, Кременецького району, Тернопільської області
1
10 930,05 грн. / га
Тернопільська область
право оренди на земельну ділянку сільськогосподарського призначення площею 6,2365 га, кадастровий номер 6125885400:02:001:0337 за межами населеного пункту с.Матвіївці, на території Великодедеркальської сільської ради, Кременецького району, Тернопільської області
Номер лоту
LRE001-UA-20250925-20738
Додатки (6)
Землі сільськогосподарського призначення 06121000-6
Кінцевий строк подання
26.10.2025 16:00:00
Дата початку аукціону
27.10.2025 09:50:00
Початкова ціна
65 580 грн без ПДВ
Мінімальний крок аукціону
656 грн без ПДВ
Тип аукціону
Англійський
Виставляється на аукціон
Вперше
право оренди на земельну ділянку несільськогосподарського призначення площею 0,700 га, кадастровий номер 6122483000:02:001:0298 ,село Залужжя, Тернопільського району, Тернопільської області
1
Тернопільська область
право оренди на земельну ділянку несільськогосподарського призначення площею 0,70 га, кадастровий номер 6122483000:02:001:0298, село Залужжя, Тернопільського району, Тернопільської області
Номер лоту
LRE001-UA-20250925-81982
Додатки (7)
Землі громадської забудови (землі, які використовуються для розміщення громадських будівель і споруд (готелів, офісних будівель, торговельних будівель, для публічних виступів, для музеїв та бібліотек, для навчальних та дослідних закладів, для лікарень та оздоровчих закладів), інших об'єктів загального користування) 06112000-0
Кінцевий строк подання
26.10.2025 16:00:00
Дата початку аукціону
27.10.2025 10:25:00
Початкова ціна
129 762 грн без ПДВ
Мінімальний крок аукціону
1 298 грн без ПДВ
Тип аукціону
Англійський
Виставляється на аукціон
Повторно
Право оренди на земельну ділянку несільськогосподарського призначення, цільове призначення: 02.03. для будівництва і обслуговування багатоквартирного житлового будинку, площею 0,4000 га, кадастровий номер 6125884400:01:001:0959, яка розташована: село Круголець Кременецького району Тернопільської області (на території Шумської міської територіальної громади).
4
Тернопільська область
Право оренди на земельну ділянку несільськогосподарського призначення, цільове призначення: 02.03. для будівництва і обслуговування багатоквартирного житлового будинку, площею 0,4000 га, кадастровий номер 6125884400:01:001:0959, яка розташована: село Круголець Кременецького району Тернопільської області (на території Шумської міської територіальної громади).
Номер лоту
LRE001-UA-20250925-74876
Додатки (14)
Землі житлової забудови (землі, які використовуються для розміщення житлової забудови (житлові будинки, гуртожитки, господарські будівлі та інше); землі, які використовуються для розміщення гаражного будівництва) 06111000-3
Кінцевий строк подання
26.10.2025 16:00:00
Дата початку аукціону
27.10.2025 09:40:00
Початкова ціна
40 637 грн без ПДВ
Мінімальний крок аукціону
406 грн без ПДВ
Тип аукціону
Англійський
Виставляється на аукціон
Повторно
право оренди на земельну ділянку несільськогосподарського призначення площею 2,6482 га, кадастровий номер 6122483000:01:004:0781 ,село Ліски, Тернопільського району, Тернопільської області
1
199 295 грн. / га
Тернопільська область
право оренди на земельну ділянку несільськогосподарського призначення площею 2.6482 га, кадастровий номер 6122483000:01:004:0781, село Ліски, Тернопільського району, Тернопільської області
Номер лоту
LRE001-UA-20250925-66503
Додатки (7)
Землі громадської забудови (землі, які використовуються для розміщення громадських будівель і споруд (готелів, офісних будівель, торговельних будівель, для публічних виступів, для музеїв та бібліотек, для навчальних та дослідних закладів, для лікарень та оздоровчих закладів), інших об'єктів загального користування) 06112000-0
Кінцевий строк подання
26.10.2025 16:00:00
Дата початку аукціону
27.10.2025 09:40:00
Початкова ціна
398 590 грн без ПДВ
Мінімальний крок аукціону
3 986 грн без ПДВ
Тип аукціону
Англійський
Виставляється на аукціон
Повторно
право оренди на земельну ділянку несільськогосподарського призначення площею 0,8407 га, кадастровий номер 6122410100:02:005:1168 вул. Д.Галицького, м.Збараж, Тернопільського району, Тернопільської області
1
Тернопільська область
право оренди на земельну ділянку несільськогосподарського призначення площею 0,8407 га, кадастровий номер 6122410100:02:005:1168, вул.Д. Галицького, м.Збараж, Тернопільського району, Тернопільської області
Номер лоту
LRE001-UA-20250925-51628
Додатки (7)
Землі промисловості, транспорту, зв'язку, енергетики, оборони та іншого призначення 06128000-5
Кінцевий строк подання
26.10.2025 16:00:00
Дата початку аукціону
27.10.2025 09:10:00
Початкова ціна
94 025 грн без ПДВ
Мінімальний крок аукціону
940 грн без ПДВ
Тип аукціону
Англійський
Виставляється на аукціон
Повторно
Продається земельна ділянка загальною площею 0.7516 га, кадастровий номер 6123080800:02:001:0315, адреса: Тернопільська область, Козівський район, с. В. Плавуча, цільове призначення: для ведення особистого селянського господарства
1
Тернопільська область
Продається земельна ділянка загальною площею 0.7516 га, кадастровий номер 6123080800:02:001:0315, адреса: Тернопільська область, Козівський район, с. В. Плавуча, цільове призначення: для ведення особистого селянського господарства
Номер лоту
LSE001-UA-20250925-74850
Додатки (8)
Землі сільськогосподарського призначення 06121000-6
Кінцевий строк подання
29.10.2025 16:00:00
Дата початку аукціону
30.10.2025 09:35:00
Початкова ціна
24 000 грн без ПДВ
Мінімальний крок аукціону
240 грн без ПДВ
Тип аукціону
Англійський
Виставляється на аукціон
Вперше
Право оренди на земельну ділянку несільськогосподарського призначення, цільове призначення: 02.03. для будівництва і обслуговування багатоквартирного житлового будинку, площею 0,4000 га, кадастровий номер 6125884400:01:001:0908, яка розташована: село Круголець Кременецького району Тернопільської області (на території Шумської міської територіальної громади).
4
Тернопільська область
Право оренди на земельну ділянку несільськогосподарського призначення, цільове призначення: 02.03. для будівництва і обслуговування багатоквартирного житлового будинку, площею 0,4000 га, кадастровий номер 6125884400:01:001:0908, яка розташована: село Круголець Кременецького району Тернопільської області (на території Шумської міської територіальної громади).
Номер лоту
LRE001-UA-20250925-71446
Додатки (14)
Землі житлової забудови (землі, які використовуються для розміщення житлової забудови (житлові будинки, гуртожитки, господарські будівлі та інше); землі, які використовуються для розміщення гаражного будівництва) 06111000-3
Кінцевий строк подання
27.10.2025 16:00:00
Дата початку аукціону
28.10.2025 09:30:00
Початкова ціна
40 637 грн без ПДВ
Мінімальний крок аукціону
406 грн без ПДВ
Тип аукціону
Англійський
Виставляється на аукціон
Повторно
Продаж земельної ділянки площею 0,12 га, що знаходиться за адресою: с.Більче-Золоте, Чортківського району Тернопільської області, кадастровий номер 6120880900:03:001:0075, цільове призначення: для індивідуального садівництва
3
Тернопільська область
Продаж земельної ділянки площею 0,12 га, що знаходиться за адресою: с.Більче-Золоте, Чортківського району Тернопільської області, кадастровий номер 6120880900:03:001:0075, цільове призначення: для індивідуального садівництва
Номер лоту
LAE001-UA-20250924-88136
Додатки (9)
Землі сільськогосподарського призначення 06121000-6
Кінцевий строк подання
26.10.2025 16:00:00
Дата початку аукціону
27.10.2025 10:50:00
Початкова ціна
68 690 грн без ПДВ
Мінімальний крок аукціону
687 грн без ПДВ
Тип аукціону
Англійський
Виставляється на аукціон
Вперше
Продаж земельної ділянки загальною площею 1.0163 га, кадастровий номер 6120483900:01:004:0070, адреса: Тернопільська область, Бережанський район, Мечищівська сільська рада, цільове призначення: для ведення товарного сільськогосподарського виробництва
1
26 000 грн. / га
Тернопільська область
Продаж земельної ділянки загальною площею 1.0163 га, кадастровий номер 6120483900:01:004:0070, адреса: Тернопільська область, Бережанський район, Мечищівська сільська рада, цільове призначення: для ведення товарного сільськогосподарського виробництва
Номер лоту
LSP001-UA-20250924-74399
Додатки (10)
Землі сільськогосподарського призначення 06121000-6
Кінцевий строк подання
27.10.2025 16:00:00
Дата початку аукціону
28.10.2025 10:10:00
Початкова ціна
26 000 грн без ПДВ
Мінімальний крок аукціону
260 грн без ПДВ
Тип аукціону
Англійський
Виставляється на аукціон
Вперше
Продаж земельної ділянки загальною площею 0.6789 га, кадастровий номер 6120483900:01:004:0068, адреса: Тернопільська область, Бережанський район, Мечищівська сільська рада, цільове призначення: для ведення товарного сільськогосподарського виробництва
1
Тернопільська область
Продаж земельної ділянки загальною площею 0.6789 га, кадастровий номер 6120483900:01:004:0068, адреса: Тернопільська область, Бережанський район, Мечищівська сільська рада, цільове призначення: для ведення товарного сільськогосподарського виробництва
Номер лоту
LSP001-UA-20250924-78100
Додатки (10)
Землі сільськогосподарського призначення 06121000-6
Кінцевий строк подання
28.10.2025 16:00:00
Дата початку аукціону
29.10.2025 10:00:00
Початкова ціна
12 000 грн без ПДВ
Мінімальний крок аукціону
120 грн без ПДВ
Тип аукціону
Англійський
Виставляється на аукціон
Вперше
Продаж права оренди земельної ділянки комунальної власності: кадастровий номер 6120880600:01:001:1065 площею 2,6367 га, категорія земель - землі сільськогосподарського призначення, вид цільового призначення (01.01.) для ведення товарного сільськогосподарського виробництва, що розташована за межами населеного пункту с. Бабинці, Чортківського району, Тернопільської області
3
1 055,09 грн. / га
Тернопільська область
Продаж права оренди земельної ділянки комунальної власності Борщівської міської ради: кадастровий номер 6120880600:01:001:1065 площею 2,6367 га, категорія земель - землі сільськогосподарського призначення, вид цільового призначення (01.01.) для ведення товарного сільськогосподарського виробництва, що розташована за межами населеного пункту с. Бабинці, Чортківського району, Тернопільської області
Номер лоту
LRE001-UA-20250924-26971
Додатки (9)
Землі сільськогосподарського призначення 06121000-6
Кінцевий строк подання
27.10.2025 16:00:00
Дата початку аукціону
28.10.2025 10:25:00
Початкова ціна
2 110 грн без ПДВ
Мінімальний крок аукціону
21 грн без ПДВ
Тип аукціону
Англійський
Виставляється на аукціон
Повторно
Продаж земельної ділянки загальною площею 2.9769 га, кадастровий номер 6125086600:01:001:0057, адреса: Тернопільська область, Теребовлянський район, на території Підгайчицької сільської ради, цільове призначення: для ведення товарного сільськогосподарського виробництва
1
51 000 грн. / га
Тернопільська область
Продаж земельної ділянки загальною площею 2.9769 га, кадастровий номер 6125086600:01:001:0057, адреса: Тернопільська область, Теребовлянський район, на території Підгайчицької сільської ради, цільове призначення: для ведення товарного сільськогосподарського виробництва
Номер лоту
LSP001-UA-20250922-49420
Додатки (11)
Землі сільськогосподарського призначення 06121000-6
Кінцевий строк подання
19.10.2025 15:00:00
Дата початку аукціону
20.10.2025 09:40:00
Початкова ціна
102 000 грн без ПДВ
Мінімальний крок аукціону
1 020 грн без ПДВ
Тип аукціону
Англійський
Виставляється на аукціон
Вперше
право оренди на земельну ділянку несільськогосподарського призначення площею 0,4552 га, кадастровий номер 6123085600:02:001:0116 в с.Купчинці, на території Купчинецької сільської ради, Тернопільського району, Тернопільської області
1
Тернопільська область
право оренди на земельну ділянку несільськогосподарського призначення площею 0,4552 га, кадастровий номер 6123085600:02:001:0116 в с.Купчинці, на території Купчинецької сільської ради, Тернопільського району, Тернопільської області
Номер лоту
LRE001-UA-20250922-82172
Додатки (6)
Землі промисловості, транспорту, зв'язку, енергетики, оборони та іншого призначення 06128000-5
Кінцевий строк подання
20.10.2025 15:00:00
Дата початку аукціону
21.10.2025 09:35:00
Початкова ціна
74 146 грн без ПДВ
Мінімальний крок аукціону
741 грн без ПДВ
Тип аукціону
Англійський
Виставляється на аукціон
Вперше
Продаж земельної ділянки загальною площею 2.9769 га, кадастровий номер 6125086600:01:001:0057, адреса: Тернопільська область, Теребовлянський район, на території Підгайчицької сільської ради, цільове призначення: для ведення товарного сільськогосподарського виробництва
1
51 000 грн. / га
Тернопільська область
Продаж земельної ділянки загальною площею 2.9769 га, кадастровий номер 6125086600:01:001:0057, адреса: Тернопільська область, Теребовлянський район, на території Підгайчицької сільської ради, цільове призначення: для ведення товарного сільськогосподарського виробництва
Номер лоту
LRE001-UA-20250922-58864
Додатки (12)
Землі сільськогосподарського призначення 06121000-6
Кінцевий строк подання
19.10.2025 15:00:00
Дата початку аукціону
20.10.2025 09:05:00
Початкова ціна
102 000 грн без ПДВ
Мінімальний крок аукціону
1 020 грн без ПДВ
Тип аукціону
Англійський
Виставляється на аукціон
Вперше
Продаж права оренди на земельну ділянку для іншого сільськогосподарського призначення площею 0,8284 га, кадастровий номер 6122686000:01:002:0559, яка розташована на території Зборівської ТГ.
1
Тернопільська область
Земельна ділянка площею 0,8284 га, за кадастровим номером 6122686000:01:002:0559. Цільове призначення - 01.13 Для іншого сільськогосподарського призначення, Категорія земель - Землі сільськогосподарського призначення. Розташована за адресою: Тернопільська область, Тернопільський район, за межами с. Млинівці.
Номер лоту
LRE001-UA-20250922-18244
Додатки (8)
Землі сільськогосподарського призначення 06121000-6
Кінцевий строк подання
23.10.2025 15:00:00
Дата початку аукціону
24.10.2025 09:10:00
Початкова ціна
4 010 грн без ПДВ
Мінімальний крок аукціону
40 грн без ПДВ
Тип аукціону
Англійський
Виставляється на аукціон
Вперше
Продаж права оренди на земельну ділянку для іншого сільськогосподарського призначення площею 3,2086 га, кадастровий номер 6122686000:01:002:0556, яка розташована на території Зборівської ТГ.
1
4 386,50 грн. / га
Тернопільська область
Земельна ділянка площею 3,2086 га, за кадастровим номером 6122686000:01:002:0556. Цільове призначення - 01.13 Для іншого сільськогосподарського призначення, Категорія земель - Землі сільськогосподарського призначення. Розташована за адресою: Тернопільська область, Тернопільський район, за межами с. Млинівці.
Номер лоту
LRE001-UA-20250922-14924
Додатки (9)
Землі сільськогосподарського призначення 06121000-6
Кінцевий строк подання
23.10.2025 15:00:00
Дата початку аукціону
24.10.2025 08:50:00
Початкова ціна
13 160 грн без ПДВ
Мінімальний крок аукціону
132 грн без ПДВ
Тип аукціону
Англійський
Виставляється на аукціон
Вперше
Продаж права оренди на земельну ділянку сільськогосподарського призначення, для товарного сільськогосподарського виробництва площею 3.6885 га за кадастровим номером 6122683100:01:001:0809, що розташована на території Зборівської ТГ.
1
7 797,63 грн. / га
Тернопільська область
Земельна ділянка площею 3.6885 га, за кадастровим номером 6122683100:01:001:0809. Цільове призначення - 01.01 Для ведення товарного сільськогосподарського виробництва, Категорія земель - Землі сільськогосподарського призначення. Розташована за адресою: Тернопільська область, Тернопільський район, на території Гукалівської сільської ради(колишньої).
Номер лоту
LRE001-UA-20250922-99676
Додатки (6)
Землі сільськогосподарського призначення 06121000-6
Кінцевий строк подання
29.10.2025 16:00:00
Дата початку аукціону
30.10.2025 10:40:00
Початкова ціна
23 393 грн без ПДВ
Мінімальний крок аукціону
234 грн без ПДВ
Тип аукціону
Англійський
Виставляється на аукціон
Вперше
Нерухомість в місті
Нерухомість за власником